重庆市建设工程消防设计 技术疑难问题研究 (培训资料)


重庆市住房和城乡建设委员会 重庆市勘察设计协会


2023年4月


前言


为进一步提升本市建设工程消防设计和技术审查质量,解答 工程建设中的消防技术疑难问题,搭建消防业务交流学习平台, 市住房城乡建委、市勘察设计协会组织相关设计和图审单位,总 结工程实践经验,借鉴国内外成熟做法,广泛征集意见,深入调 查研究,反复讨论和修改,完成了研究工作。研究成果通过了本 市消防技术专家的审查和住房和城乡建设部建设工程消防标准技 术委员会的专家函审,最终形成定稿。

本次研究工作得到了重庆市住房和城乡建设技术发展中心、 中机中联工程有限公司、中煤科工重庆设计研究院(集团)有限 公司、重庆市设计院有限公司、中铁二院工程集团有限责任公司、 重庆市渝州工程勘察设计技术服务中心、重庆机三院施工图审查 有限公司、重设怡信工程技术顾问有限公司等单位的大力支持。

在国家工程建设标准化工作改革的大背景下,工程建设消防 技术标准体系正发生较大变革,国家工程建设消防技术标准体系 的结构、内容、适用范围、功能、性能、技术措施及参数要求等 正不断变化,但为了不影响我市工程项目建设的顺利开展,经慎 重研究和考虑,公布本次研究成果。欢迎大家结合《消防设施通 用规范》《建筑防火通用规范》以及其他国家工程建设消防技术标 准的学习和实践,对本次研究成果提出宝贵意见。


目录


第一章建筑专业...............................................................................1

第二章结构专业.............................................................................12

第三章 消防给排水专业.................................................................13

第四章消防电气专业.....................................................................27

第五章消防防排烟专业.................................................................39

第六章城市轨道交通工程.............................................................70

第七章工业建筑工程.....................................................................90

第八章综合能源工程...................................................................100


第一章建筑专业

问题一:高层民用建筑应设置环形消防车道,确有困难时, 可沿建筑的两个长边设置消防车道,当塔楼长边和整个建筑的长 边不重合时,此处两个长边是指整个建筑(含裙房)的两个长边 还是塔楼两个长边?

讨论成果:根据规范及条文说明,如果高层建筑设有裙房, 从建筑定性上来讲应该认定为一栋建筑,应沿整栋建筑的两个长 边设置消防车道;当塔楼长边和整栋建筑的长边不重合时,塔楼 至少一个长边也应设消防车道。塔楼的消防车登高操作场地应按 规范要求设置。

问题二:消防车道与建筑的最远距离怎么控制?

讨论成果:不需要设置消防车登高操作场地的建筑,如因受 地形或其他条件限制,消防车道至建筑的最大行走距离不应大于 50米(两盘水带搭接长度),消防车道与建筑间应设置连接通道且 消防车道与建筑之间不应有其它建筑。

需要设置消防车登高操作场地的建筑,除消防车登高操作场 地所连接的消防车道外,其余消防车道如因受地形或其他条件限 制,消防车道至建筑的最大行走距离不应大于50米(两盘水带搭 接长度),消防车道与建筑间应设置连接通道且消防车道与建筑之 间不应有其它建筑。

问题三:当建筑屋面为平屋面时,其消防高度该怎么计算(是


1


否包含保温、防水、找坡层)?平屋面完成面是按找坡最高点、 最低点还是取平均值?

讨论成果:平屋面找坡层导致屋面的高度变化较小,在计算 建筑消防高度时可取屋面完成面低点(起坡点)标高进行计算。

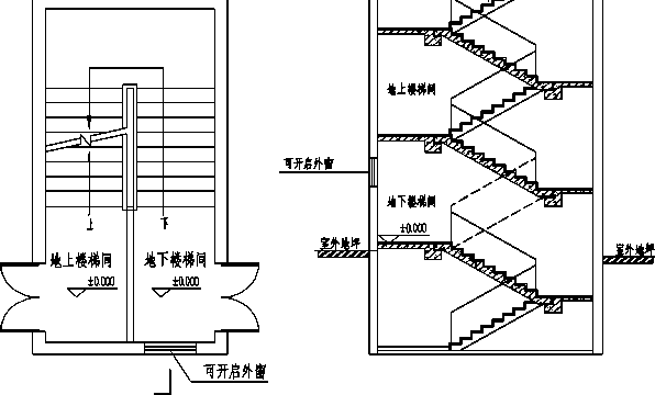
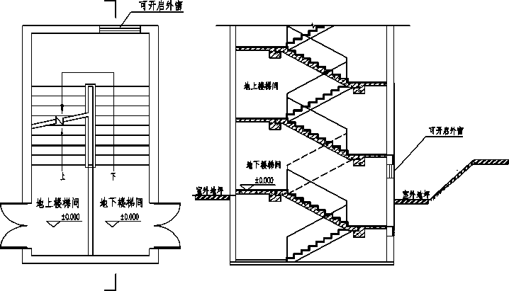
问题四:楼梯间首层直通到架空层,能否算直通室外?是否 要限制距离?

讨论成果:当楼梯间通至的架空层为安全区时,可认定为楼 梯间直通室外。架空层满足以下条件时,可认定为安全区:

1.建筑架空层除通行功能外不应设置其它功能;

2.建筑架空层内不应设可燃物;

3.建筑架空层应具备自然排烟条件;

4.建筑架空层全架空无外围护结构或三面架空无外围护结 构,另一面贴临防火墙。架空部分能直通室外、架空部分任意一 点距架空空间外缘的疏散距离不大于30米;

5.对于开敞面少于三面的局部架空,该区域进深和高度之比 应小于l:lo

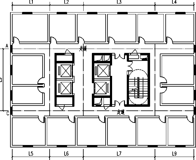
问题五:根据《建筑面积计算规范》(GB/T 503-2013)计算主 体结构外的阳台、外走廊的面积时,将其水平投影面积的一半计 入建筑面积。那么,计算防火分区建筑面积时,是否可按照阳台、 外走廊面积的一半计?架空层怎么算防火分区面积?避难走道供 两个及以上分区疏散的时候,是否可以不算入分区面积?

讨论成果:开敞式的外走廊或阳台可不计入防火分区的建筑


面积。图例展示:


2



除直通室外并满足安全区要求的架空层外,架空层均应按相 关规范进行消防设计。避难走道供两个及以上分区疏散时,避难 走道的面积应平均分配后计入到其服务防火分区的面积。


问题六:直通建筑内附设汽车库的电梯,为了美观及装饰要 求,电梯侯梯厅可否采用相当于ZOOh耐火极限的防火玻璃、防火 卷帘或水幕等等效分隔措施与汽车库分隔?

讨论成果:直通建筑内附设汽车库的电梯,应在汽车库部分 设置电梯候梯厅,并应采用耐火极限不低于2.0Oh的防火隔墙和乙 级防火门与汽车库分隔;也可采用耐火极限不低于2.0Oh的防火玻 璃墙和乙级防火门与汽车库分隔:

直通建筑内附设汽车库的电梯,电梯侯梯厅不能采用防火卷 帘+普通钢化玻璃、防火卷帘、水幕等方式与汽车库进行分隔。

问题七:地下车库中的设备用房建筑面积多大时需单独设置 防火分区?

讨论成果:汽车库内设置的设备用房,当总建筑面积不超过 500m2时可不独立设置防火分区;当设置自动灭火系统且总建筑面 积不超过IOOom2时可不独立设置防火分区。


3


问题八:当向相邻防火分区开门借用疏散时,借用的疏散宽 度是按需要借用的宽度计算,还是按开门宽度计算?

讨论成果:一个防火分区需要向另一个防火分区开设借用疏 散门时,借用的疏散宽度原则上按开设门洞宽度取值,但当需要 借用的宽度小于所开疏散门宽度时可按需要借用的宽度计算取 值,但最小取值不应小于600mmo

问题九:当地下室设有车库、商业等功能时,各防火分区间 是否可以借用疏散?

讨论成果:地下商业防火分区之间可以借用疏散但应满足相 关规范的规定;地下车库防火分区之间不允许借用疏散和共用楼 梯进行疏散;地下商业防火分区和地下车库防火分区之间在同一 层平面中不能借用疏散或设置共用楼梯,在不同楼层竖向上可以 共用楼梯进行疏散,但在首层平面中与地上楼梯应分别直通室外。

问题十:两座单体建筑之间的天桥、连廊是否可以作为安全 出口?如果可以作为安全出口其自身的防火分区面积和疏散距离 是怎么控制?

讨论成果:连接两座建筑之间的天桥、连廊应满足相关的条 件才能作为安全区和安全出口。同时满足以下条件的天桥、连廊 可不计入建筑的防火分区面积和疏散距离:

1.连接的两座建筑之间防火间距满足要求、两座建筑有独立 的疏散体系;

2.天桥、连廊与建筑间采用耐火极限不低于2.00h的防火隔 墙或防火玻璃墙、乙级防火门等防火分隔措施,建筑与天桥或连


4


廊的洞口间距不小于1米;

3.天桥、连廊能通达地面(可设置独立楼梯或利用相邻建筑 的疏散体系通达地面);

4.天桥、连廊仅供通行不能用作其他使用用途;

5.天桥、连廊采用不燃材料且结构体系宜与建筑独立设置;

6.天桥、连廊应满足自然排烟的条件。

问题十一:住宅底部有设置的1-2层商业,但有较长部分超出 住宅投影范围,如果商业每个分隔单元建筑面积以及其他条件均 满足商业网点的相关规定,是否可以定义为商业网点?如果1-2 层商业是独立的,或只与住宅临帖设置,但每个分隔单元面积以 及其他条件均满足商业网点的相关规定,其能否按商业网点进行 设计?

讨论成果:根据规范商业服务网点满足以下条件:

1.位于设置在住宅建筑的首层或首层及二层;

2.每个分隔单元之间应采用耐火极限不低于2.0小时且无开 口的防火隔墙分隔;

3.每个独立单元层数不应大于2层,总建筑面积不大于300m2;

4.每个独立单元中建筑面积大于200m2的任一楼层均应设置 至少2各疏散出口。

为住宅服务的商业或配套公建(公共设施),位于住宅建筑下 部,虽有超出住宅投影范围,如满足以上要求,也可定义为商业 网点;独立设置或与住宅临帖设置的1-2层任何商业或公建,均不 能定性为商业网点。图例展示:


5


L(长度不限)


一 —  ~[~     2F

nF

住宅 公建(商业)


O




问题十二:商业网点连接1-2层的室内楼梯的梯段宽度及踏步 的高宽尺寸如何确定?

讨论成果:商业网点可执行一般公共建筑的相关要求,其内 疏散走道和疏散楼梯的净宽度不应小于LlOm。楼梯踏步的高宽尺 寸应按《民用建筑设计统一标准》GB 50352-20196810条相关 规定执行。

问题十三:地上建筑和地下建筑楼梯间共用楼梯竖井时,两 部楼梯在首层是否能通过一个扩大楼梯间或扩大前室直通室外?

讨论成果:

地上建筑和地下建筑的疏散楼梯当在竖向上共用楼梯竖井


6


时,两部楼梯在首层应采用耐火极限不低于2.00h且无开口的防火 隔墙分隔,分别直通室外,也可以通过一个扩大前室直通室外;

问题十四:避难层的房间(包括避难区及设备用房)对外开 窗是否都必须用乙级防火窗?如采用乙级防火窗,能否作为房间 自然通风和排烟的窗口?避难层房间对外开口能否采用百叶?

讨论成果:根据规范避难层的房间(包括避难区以及设备用 房)对外开窗应设为乙级防火窗。避难层的通风和排烟应按暖通 专业的要求进行设计。避难层房间对外开口不能采用百叶。

问题十五:地下车库内连接各层的汽车坡道是否计入车库防 火分区面积?是否计算疏散距离?

讨论成果:车库内连接上下层的汽车坡道供车行使用的同时, 又供人行使用,人行通道应与车行坡道做安全分隔并满足人行通 道坡度要求,同时应满足疏散距离要求;车库内连接各层的汽车 坡道如作为汽车上下楼层的通道,仅供车行使用,不作为人行通 道时则不需要考虑上述要求;车库坡道根据面积计算规定进行面 积计算并计入防火分区面积。

问题十六:建筑各层均设置露台,露台通过室外台阶连接, 最后可到达室外地面,则各层露台是否可认定为室外安全区域?

讨论成果:建筑各层露台通过室外台阶连接,最后可到达室 外地面,且满足下列要求时,可以认定为室外安全区域:

1.当建筑房间与露台相邻的墙体上设有门窗洞口时,露台的


最小净宽不应小于6米;


7


2.当建筑房间与露台相邻的墙体采用耐火极限不低于2小时 的防火隔墙及乙级防火门窗等防火分隔措施时,露台的最小净宽 不应小于3米;

3.各级露台的楼梯出入口应直接设在露台上且楼梯形式应满 足规范要求;

4.各级露台应设置消防应急照明和疏散指示标志。

问题十七:当层数不超过4层且未采用扩大的封闭楼梯间或 防烟楼梯间前室时,可将直通室外的门设置在离楼梯间不大于 15m处。此条在图示上仅表达了敞开楼梯间的情况,对于封闭楼 梯间和防烟楼梯间,是否也可执行15m?

讨论成果:当层数不超过4层时开敞楼梯间、未采用扩大封 闭楼梯间的封闭楼梯、未采用扩大前室的防烟楼梯等,可将直通 室外的门设置在离楼梯间不大于15m处。

图例展示:

散开街桐



8


⅛⅛o

(未采用扩大夷H成编间)




问题十八:汽车库内设防火卷帘时,防火卷帘设置宽度的要 求是否执行《建筑设计防火规范》GB 50016-2014 ( 2018年版)第 653 条?

讨论成果:除汽车库内车道上可采用耐火极限不低于3.0Oh 的防火卷帘分隔外,其他防火分区分隔部位应采用防火墙和甲级 防火门。汽车库因防火分隔设置的防火卷帘总宽度不做限制。

问题十九:消防电梯前室及防烟楼梯前室能否设置普通电 梯?建筑首层的扩大前室内是否可以设置普通电梯?


9


讨论成果:设置在消防电梯或疏散楼梯间前室内的非消防电 梯,防火性能不应低于消防电梯的防火性能。

问题二十:人员密集场所规范要求L4m门净宽是否可以采用 多扇门组合?

讨论成果:在L40m宽度内不应采用3扇及以上的门,不宜 采用单扇门,单扇或双扇门开启后的净宽度不应小于l.40mo

图例展示:



人员密集嬲

1500


X              V

问题二十一:除地下或半地下商店外,其他建筑类型是否可 以采用下沉式广场、防火隔间、避难走道组织安全疏散?

讨论成果:

1.可以采用下沉式广场来组织平层其他使用功能的安全疏 散,但下沉式广场应满足规范的相关要求;

2.下沉式广场原则上不能作为疏散楼梯的出口,需要作为楼 梯安全出口的特殊情况应经过专家咨询确定;

3.采用避难走道来组织安全疏散需经过专家咨询确定。


10


问题二十二:地下车库与托儿所、幼儿园、中小学校教学楼、 老年人建筑、病房楼等组合建造时,疏散楼梯是否可以共用?

讨论成果:

根据规范,汽车库与托儿所、幼儿园,老年人建筑,中小学 校的教学楼,病房楼等的安全出口和疏散楼梯应分别独立设置。

地上、地下疏散楼梯在竖向上共用楼梯竖井时,当能分别直 通室外且满足防火分隔条件时(墙体耐火极限不小于3h、楼板耐 火极限不小于2h),可作为两个独立的楼梯。

图例展示:



千飾嚼餌魅 网不小于2小时


l⅛⅛Λ⅛l^ 不小于弘年 -----'~^...1—



X


11


汽车駄餅


吐歎触梯



第二章结构专业

问题一:结构专业的防火设计说明如何编写?

讨论成果:结构专业的防火设计说明应按照《重庆市建筑工 程施工图消防设计文件编制技术规定》第四章的要求单独编写。

问题二:防火墙设置在建筑地基或框架、梁等承重结构上的 要求,设计中如何掌握?

讨论成果:设置在建筑楼板上的防火墙,其下应设置承重梁 等承重结构,且该承重结构的耐火极限应与防火墙一致。

问题三:混凝土结构中楼梯梯柱的耐火极限及最小截面尺寸如 何确定?

讨论成果:由于楼梯梯柱仅用于支撑梯段和中间休息平台, 因此,梯柱的耐火极限应与《建筑设计防火规范》GB 50016-2014 (2018年版)表5.1.2中疏散楼梯的耐火极限保持一致,并由此确 定梯柱的最小截面尺寸。


12


第三章消防给排水专业

问题一:对于上部为住宅与下部为其他使用功能的建筑合建 时,其火灾延续时间如何确定?

讨论成果:下部为一种或多种公共建筑功能,上部为住宅的 建筑,室内、外消火栓系统的火灾延续时间为:

1.下部为一种功能时,建筑高度大于24m的商业楼、展览楼 及建筑高度大于50m的财贸金融楼、图书馆、书库、重要的档案 楼、科研楼和高级宾馆等,取3小时;除上述建筑以外的其他公 共建筑时,取2小时;

2.下部建筑为多种建筑功能组合时,取3小时。

问题二:售楼部(会所)、汽车4S店的消防照度怎么设计?

讨论成果:售楼部按“商店建筑"进行设计;会所根据实际 平面功能确定按"商店建筑或歌舞娱乐放映游艺场所"进行设计; 汽车4S店整体按"商店建筑"进行设计,并应满足《汽车库、修 车库、停车场设计防火规范》GB 50067-2014中关于"修车库"的 相关规定。

问题三:"有效容积大于IOOOnP的消防水池应分成两座独立 使用的消防水池","独立”应如何把握?是否只需隔墙分开即可? 如隔墙之间有间距要求,此间距应是多少?

讨论成果:消防水池独立使用应能满足一座消防水池检修, 另外一座消防水池仍能正常供水。两座消防水池不能共用分隔墙,


13


分隔墙之间距离满足施工要求即可。


问题四:某项目一路市政供水,设置室外消防水池,所有建 筑均在消防水池取水口 15Om保护半径内,是否可不设加压供水的 室外消火栓系统?

讨论成果:如果建筑均在消防水池取水口 15Om保护范围内, 且取水口数量满足室外消火栓设计流量要求时,该建筑可不设室 外消火栓加压泵,但是需要在一路市政供水的生活供水管网上设 室外消火栓。


问题五:下列消防水池吸水管的布置方式是否可行?




两格或两座消防水池吸水管示塞(一,


两格威两座消防水池吸水管示整(二下


讨论成果:均可行。


问题六:消防水池人孔是否可以作为室外取水口?取水口

(栓)设置要求如何确定?

讨论成果:

1.消防水池人孔可作为室外消防车取水口,但应保证消防水 池的有效容积能被全部利用并应满足取水口的相关要求。


14


2.设置要求:(a)室外消防水池取水口(栓)距路边不宜小 于0.5m,并不应大于2m; (b )取水栓栓口高度不应高于消防水池 最低有效水位。

问题七:储存室外消防用水的消防水池,取水口数量如何确 定?

讨论成果:

1.未设置临时加压室外消火栓系统时,每个取水口(井)按 10〜15L/S计算,取水口(井)数量应满足室外消火栓设计流量;

2.设置有临时加压室外消火栓系统时,每格(座)消防水池 应至少设置一个取水口(井)。

问题八:如何确定消防水池最低水位满足消防水泵自灌吸 水?

讨论成果:

1.采用卧式泵时,消防水池最低水位应不低于卧式泵的放气 孔所在高度;

2.采用立式泵时,消防水池最低水位应高于立式泵第一级叶 轮所在高度。

问题九:当消防水池储存有循环冷却水系统补水量时,循环 冷却水补水泵是否可与消防水泵合用泵房?

讨论成果:不宜合用泵房,在条件受限时,可考虑合用,但 应满足消防水泵房管理要求。

15


问题十:高压细水雾泵房是否按消防泵房设计?

讨论成果:除以下两点可不作强制性要求外,其他参照消防 泵房设计。

1.消防控制室与消防泵房的行走距离;

2.泵房不应设置在地下三层及以下,或室内地面与室外出入 口地坪高差大于IOm的地下楼层。

问题十一:消火栓系统无稳压泵时,可不设置压力开关吗? 有稳压泵时,可不设置流量开关吗?

讨论成果:消火栓系统无稳压泵时,应设置流量开关;有稳 压泵时,应设置流量开关和压力开关。

问题十二:消防给水系统采用高位消防水箱稳压时,高位消 防水箱出水管上的流量开关启泵信号设定值如何确定?

讨论成果:高位消防水箱出水管上的流量开关启泵信号应大 于管网的正常泄漏量,小于管网的正常泄漏量与一个水灭火设施 的流量之和。应根据使用过程中的管网泄漏量动态调整。启泵流 量建议初始值:

1.自动喷水灭火系统以流量1.5L∕s作为启泵信号;

2.室内消火栓系统以流量2.5L∕s作为启泵信号;室外消火栓 系统以流量2.5L∕s作为启泵信号;

3.室内、外消火栓系统合用时以流量2.5L∕s作为启泵信号。

问题十三:《消防给水及消火栓系统技术规范》(GB 50974-2014)6.1.9条第2款中的"其他建筑应设置高位水箱,


16


但当设置高位消防水箱有困难,且采用安全可靠的消防给水形式 时,可不设高位消防水箱",设置困难、安全可靠的消防给水形式 如何界定?

讨论成果:设置困难是指:改建及临时建筑无设置消防水箱条 件。安全可靠的消防给水形式须同时满足以下条件:

1.设有消防水池及消防水泵,满足两路供水;

2.设置稳压水泵及气压罐;

3.设置双电源。

问题十四:在屋顶设置高位消防水池的常高压系统,顶部区 域设置临时高压系统时,高位消防水箱容积如何取值?

讨论成果:高位消防水池最低有效水位高于水灭火设施(不 含停机坪消火栓),可不设置高位消防水箱;其它情况高位消防水 箱的容积根据该系统供水高度确定,且不应小于18m3

问题十五:住宅与其他使用功能合建的建筑,当满足《建筑 设计防火规范》GB 50016-2014(2018年版)第5.4.1012款 时,其屋顶消防水箱容积如何取值?

讨论成果:按住宅和其他功能建筑分别确定后,取大值。

问题十六:中间转输消防水箱和泵房,若必须设置在住宅等 对安静要求严格的房间的上下方及毗邻位置时,是否可以采用浮 筑基础作为隔振降噪的措施?

讨论成果:可以采用浮筑基础。


17


问题十七:执行《消防给水和消火栓系统技术规范》GB 509742014 5.4.6条时,如何确定消防车供水高度?

讨论成果:应根据服务于本项目的消防救援部门消防车供水 高度确定。


问题十八:消防水池水位如何设置? 讨论成果:消防水池水位按下图所示设置。

I_____________溢流水位ChEoQmnO

IR商报督水位Ch+50m) [ —          - 一       W— 最高荷效水位0"

.....^.......... 最低报警水位(h-50'100m )

消防水池

最低有效水位 I


消防水池水位示意


问题十九:老年人照料设施、儿童活动场所室内、外消火栓 系统如何设计?

讨论成果:室外消防水量参照公共建筑取值;室内消防水量 参照病房楼、门诊楼取值;建筑体积小于5000m3的老年人照料设 施、儿童活动场所应设置消防软管卷盘。


问题二十:地下车库车道处的室内消火栓的设置原则。

讨论成果:

1.为便于取用,消火栓应优先面向车道、通道设置;

2.当条件受限,消火栓面向车道设置影响汽车通行时,可设 置在柱后,但需在面向车道侧,设置明显的永久指示标识;

3.消火栓应设置在便于取用和开启的位置;


18


4.当结构柱宽小于60Onnn且柱距较小,柱子上安装65Omnl 宽消火栓箱要影响停车位使用时,可采用非标定制消火栓箱。

问题二十一:实际工程中,各层功能、平面布局相差较大, 竖向消火栓布置点位不一致,是否可采用室内消火栓环网各层水 平单独成环布置的方式?

讨论成果:高层建筑不应采用各层水平单独成环布置方式, 多层建筑不宜采用各层水平单独成环布置方式。

问题二十二:设置内楼梯的两层小开间商铺(非商业网点), 是否可以每间、每层设置一只消火栓?

讨论成果:在满足两股充实水柱到达室内任何部位的情况下, 每间、每层应至少设置一只带消防软管卷盘的消火栓。

问题二十三:公共部位无法设置室内消火栓时,互不相通的 商铺,是否可以在每个商铺内设置一个室内消火栓的情况下,互 相借用?

讨论成果:可以互相借用。

问题二十四:公共建筑,按规范需要设室内消火栓系统,当 个别部位做了小夹层,面积都不大(20r2左右),仅有内楼梯通往 下层。是否可以夹层不设室内消火栓,通过下层的室内消火栓保护?

讨论成果:在夹层满足至少有一股消火栓充实水柱到达室内 任何部位的情况下,夹层可不再设室内消火栓。


19


问题二十五:设有室内消火栓系统的建筑屋顶仅有设备机房 时,是否需要设置室内消火栓?

讨论成果:

1.局部突出屋顶的嗓望塔、冷却塔、水箱间、微波天线间或 设施、电梯机房、排风、排烟机房以及楼梯出口小间等辅助用房 的总面积占屋面面积不大于1/4者可不设置;

2.排烟风机和排风风机合用的机房应设置室内消火栓。

问题二十六:消防设计中,是否能采用双立管双栓?两个消 火栓设置的最小间距是否有要求?

讨论成果:不应采用双立管双栓。公共建筑室内消火栓布置 间距不应小于5m;住宅建筑确有困难时,布置间距可适当放宽。

问题二十七:人防地下室(车库)设置的消火栓是否需带消 防卷盘?

讨论成果:根据平时使用功能确定是否设置消防卷盘;人防 地下车库,可不设置消防卷盘。

问题二十八:管道转换、设备层是否需设置室内消火栓?

讨论成果:

1.设备层应设置室内消火栓;

2.层高小于2.2m且无可燃物的管道层可不设室内消火栓,但 应在管道层的检修入口附近设置两个消火栓。

问题二十九:采用减压阀分区的室内消防系统,是否可只在


20


高区设置水泵接合器?

讨论成果:当采用可调式减压阀时,可仅在高区设置水泵接 合器;当采用比例式减压阀时,应分别设置水泵接合器。

问题三十:大型场馆、展览馆,在场地周边墙体、柱头上设 置消火栓均不能满足空旷场地任何地方2支消火栓水枪保护的要 求,该场馆消火栓如何设置?

讨论成果:场地内结合平面布置,设置落地式消火栓箱或地 埋式消火栓箱。

问题三十一:多层住宅在入户大堂不设置室内消火栓,由1〜2 层之间的楼梯休息平台的消火栓保护,此种做法是否可行?

讨论成果:多层住宅首层应设置室内消火栓,其它楼层(不 包含跃层)可在楼梯休息平台设置,且应满足每个楼层有对应的 消火栓保护。

问题三十二:消火栓栓口动压力不应大于0.5MPa,当大于 0.7MPa时必须设置减压设施,如何理解?

讨论成果:高大空间场所,按消火栓栓口动压力不应大于 0.7MPa控制;一般场所,按消火栓栓口动压力不应大于0∙5MPa 控制。

问题三十三:设有消火栓及自动喷水灭火系统的建筑,非电 气设备房是否需要设置自动喷水灭火系统?


讨论成果:


21


1. 一类高层公共建筑内的非电气设备房均应设置自动喷淋系


统;

2.多层或二类高层公共建筑的生活水泵房、水箱间、消防水 泵房及水处理机房等无可燃物的非电气设备房,可不设自动喷水 灭火系统。

问题三十四:设有自动喷水灭火系统的建筑,消防控制中心 (室)设置何种自动灭火设施?

讨论成果:消防控制中心(室)可不设自动灭火系统,但应 设置灭火器,且应有两股室内消火栓充实水柱保护。

问题三十五:总建筑面积大于3000m2的办公楼及教学楼,设 置送、回风道(管)的集中空气调节系统时,,自动喷水灭火系统 如何设置?

讨论成果:设置送、回风道(管)的集中空气调节系统的区 域面积大于3000m2时,整栋建筑均应设置;面积小于等于3000m2 时,整栋建筑可不设置。

问题三十六:柴油发电机房储油间设何种自动灭火设施?

讨论成果:储油间的自动灭火设施设置与柴油发电机房一致。

问题三十七:格栅吊顶在不同通透性程度下喷头采用上喷还是 下喷?

讨论成果:通透面积占吊顶总面积的比例不大于70%,或通 透面积占吊顶总面积的比例大于70%、但不符合GB 50084-2017


22


7.1∙13条第1款的要求时,应在吊顶上、下分别设置喷头,且 应在下垂型喷头的上方设置挡水板。


问题三十八:设有自动喷水灭火系统的建筑,层高不超过2.2m 的管道转换层局部设置有设备机房时,是否需要设置喷头保护?

讨论成果:可仅在设备机房内设置喷头。

问题三十九:设有自动喷水灭火系统的宾馆、公寓、宿舍或超 高层住宅项目的阳台是否需要设置喷头?

讨论成果:宿舍套内未设置喷头时,其阳台可不设置喷头; 其它情况均须设置喷头。

问题四十:设置有自动喷水灭火系统的建筑,其外廊(外走道)、 连廊是否需要设置喷头?

讨论成果:

1.除首层外,外廊(外走道)应设置喷头;

2.满足防火间距的两栋建筑之间的连廊不具备其他使用功能两端设有防火门且两侧开敞时,可不设置喷头。

问题四十一:设有自动喷水灭火系统的建筑屋顶,当布置有设 备机房时,是否需要设置喷头?

讨论成果:除排烟风机和排风风机合用的机房外,局部突出 屋顶的燎望塔、冷却塔、水箱间、微波天线间或设施、电梯机房 以及楼梯出口小间等辅助用房的总面积占屋面面积不大于1/4者 可不设置。


23


问题四十二:人防地下室口部的房间及通道是否设置喷头?

讨论成果:除扩散室、除尘室、集气井外,平时不封闭的房 间及通道,应设置喷头。

问题四十三:根据《消防给水及消火栓系统技术规范》GB 50974-20146.2.1条第3款,自喷系统报警阀处的工作压力大于 1.6MPa或喷头处的工作压力大于1.2MPa时,应分区供水;《自动 喷水灭火系统设计规范》GB 50084-20178.0.1条,配水管道(即 湿式报警阀后的管道)的工作压力不应大于L2MPa。此处湿式报 警阀后压力规定有矛盾,如何确定?

讨论成果:配水管道(即湿式报警阀后的管道)的工作压力 不应大于1.2MPa

问题四十四:敞开式机械汽车库是否设置自动喷水灭火系统?

讨论成果:按敞开式汽车库执行,可不设置自动喷水灭火系 统。

问题四十五:建筑内电气设备房如何设置自动灭火系统?

讨论成果:

1.设置在高层建筑内的电气设备房应设置自动灭火系统;

2.设置在多层建筑内,与车库不在同一防火分区,疏散出口 直通室外的电气设备房可不设置自动灭火系统;

3.独立建造、为民用建筑服务的电气设备房可不设置自动灭


火系统。


24


问题四十六:医院的贵重设备用房气体灭火系统如何设置?

讨论成果:

1.医院的贵重设备用房、病案室、信息中心(网络)机房等 用房应设置自动灭火系统,其中:CT、X光、DR(直接数字化X 射线摄影系统)、CR (计算机数字化X射线摄影)、PET-CT (正 电子发射型电子计算机断层扫描仪)、ETC (核医学断层扫描机)、 直线加速器、回旋加速器等应设气体灭火系统或高压细水雾灭火 系统;

2. DSA (血管造影机)可不设置自动灭火系统;

3.有防辐射要求的房间设置泄压口时,须作防辐射泄漏处理。


问题四十七:室外埋地消防水池溢流和放空管,间接排水如何 设置?

讨论成果:

1.水池溢流措施按下图所示方法实施或参照国标图集


05S804《矩形钢筋混凝土蓄水池》P180页的溢水井做法执行;

2.水池放空采用提排方式排至室外。



室外埋地消防水池溢流管做法(一)


25



室外埋地消防水池溢流管做法(二)


问题四十八:消防泵房的集水坑排水泵流量如何确定?

讨论成果:按照消防水池进水管管径,以流速L5m∕s确定流量。


问题四十九:《建筑给水排水设计标准XiB 50015-20194.8.2 条条文说明:地下车库如设水消防系统时,地面排水系统应按防 火分区分隔。如何理解?

讨论成果:宜按防火分区分别设置排水设施。在满足重力流 排水前提下,排水沟可穿越防火分区,但应采用水封措施。


问题五十:自动喷水灭火系统报警阀及末端试水的排水应设专 用排水设施,如何设置?

讨论成果:

1.当湿式报警阀、末端试水装置设置于屋面及首层时,可就 近排入雨水系统;

2.末端试水排水可以接入管井排水立管(通过漏斗连接)或 拖布池,排水管径应满足规范要求。


26


第四章消防电气专业

问题一:如何理解消防用电设备专用供电回路?

讨论成果:消防专用供电回路是指从低压总配电室或分配电 室引出的消防供电干线,总配电室、分配电室确定如下:

1•总配电室为建筑物第一级低压(220/380V)配电室,当建 筑内有变电所时,变电所低压配电室视为第一级低压配电室;

2.当单栋建筑与总配电室所处建筑可从防火上分开时,单栋 建筑可设置分配电室,除消防水泵、消防控制室、超高层避难场 所消防设备外,该栋建筑消防用电设备可从分配电室采用专用回 路供电。

问题二:消防应急照明负荷为特级负荷时,是否可以将灯具 自带的蓄电池或集中电源视为第3路电源?

讨论成果:消防应急照明负荷为特级负荷时,灯具自带的蓄 电池或集中电源,在满足《建筑电气与智能化通用规范》GB 55024-20223.1.3条规定的应急电源容量、切换时间、供电时间 的要求时,可以作为第3路应急电源。

问题三:备用照明是否需设置蓄电池?

讨论成果:

1.备用电源供电转换时间应满足规范要求,即金融、商业交 易场所不应大于l∙5s,其他场所不大于5s;

2.当市电切换时间满足要求时,备用照明灯具采用正常照明


27


灯具,可不采用蓄电池组供电;

3.当市电不能满足供电要求,设柴油发电机组作为自备电源 时,备用照明应采用自带蓄电池组的过渡照明灯,蓄电池组供电 时的持续工作时间可按不低于备用电源投入时的过渡时间,当不 好确定时,可按蓄电池初装容量不低于15min选取。

问题四:如何理解消防配电干线与支线?

讨论成果:对于末端设置双电源切换箱的消防负荷:由总配 电室或分配电室配出的线缆为配电干线,双电源切换箱出线为配 电支线,中间部分为分支干线。

对于未设置末端双电源切换箱的三级消防负荷:由总配电室 或分配电室配出的线缆为配电干线,防火分区总配电箱出线为配 电支线,中间部分为分支干线。

问题五:是否所有的避难层、避难间等避难场所消防用电设 备均应采用专用线路供电?

讨论成果:超高层避难层(区域)消防用电设备应采用专用 的供电回路;老年人照料设施和高层病房楼中的避难间有别于上 述区域,另其面积较小,没有防排烟风机等设备,该类场所避难 间的应急照明灯可由本楼层应急照明电源箱的专用回路供电。

问题六:是否所有消防设备专用供电线路过负荷时均不应切 断电路?

讨论成果:

1.消防水泵、消防电梯、消防风机、消防控制室供电回路设


28


置的过负荷保护应作用于信号报警而不应切断电源;柴油发电机 组作为消防负荷备用电源时,引至消防负荷总配电装置的线路也 应满足此要求;

2.供应急照明配电箱(或集中电源)的末端支路可采用热磁 断路器对线路进行保护;供正压送风系统减压阀、电动排烟窗、 电动挡烟垂壁、防火卷帘等设备的末端支路采用单磁断路器对线 路进行保护。

问题七:消防用电负荷为三级负荷时,是否可采用单电源单 回路供电?

讨论成果:消防用电负荷等级为三级负荷时,可由低压总配 电室或分配电室采用一回专用低压回路供电。

问题八:是否可按防火分区设置消防设备双电源自动切换 箱?

讨论成果:

1.消防水泵房、消防控制室、消防电梯机房应设置双电源自 动切换箱;其它消防设备可在设备房内设置双电源自动切换箱, 也可按防火分区设置双电源自动切换箱;

2.按防火分区设置双电源自动切换箱时,区内每台消防风机、 消防排水泵应应采用放射式供电(与防排烟有关的阀门、余压控 制器可以机房内风机控制箱供电),区内小容量消防设备(如消防 疏散照明配电装置、电动排烟窗、电动挡烟垂壁、防火卷帘等) 可由双电源自动切换箱放射式或树干式供电,树干式供电每支回 设备不应超过5台、总容量不宜超过IOkW、并宜选择预分支耐火


29


电缆或矿物绝缘电缆。


问题九:消防设备房内附属设备能否由此房间的消防双电源 切换箱供电?

讨论成果:考虑消防设备供电可靠性要求高,以下设备可由 设备房内消防双电源切换箱单独回路供电:

1.消防水泵房、消防风机房、消防控制室、消防电梯机房内 的照明;

2.变配电房、柴油发电机房内的照明、插座、末端空调器、 末端通风等用电设备。

问题十:相邻防火分区是否可以共用交界处的配电间?

讨论成果:相邻防火分区可以共用交界处的配电间,且配电 间应采用甲级防火门。但相邻防火分区不能共用交界处配电间内 的消防双电源切换箱,每个防火分区应单独设置消防双电源切换 箱,供本防火分区内消防设备(除消防水泵、消防电梯、消防控 制室外)用电。

问题十一:消防应急照明和疏散指示系统采用非集中控制型 时,主电源如何设计?

讨论成果:非集中控制型消防应急照明和疏散指示系统的主 电源应由消防电源供给,供电线路应满足消防线路的相关要求。

问题十二:未设置消防电源的小商铺可燃气体报警控制器是 否可由商铺普通电源供电?

30


讨论成果:除公共建筑外的小商铺,未设置消防电源时可燃 气体报警控制器可由商铺集中电表箱专用回路供电;设有消防电 源的场所,可燃气体报警控制器应由消防电源供电。

问题十三:应急照明配电箱或集中电源是否能设于防烟排烟 风机房、消防水泵房内?

讨论成果:应急照明配电箱可以设于防排烟机房、消防水泵 房或其控制室内,设于消防水泵房内时其防护等级不低于IP55o 集中电源内部设置有蓄电池,安装环境的温度、通风、腐蚀性、 酸碱性等应满足其正常工作要求,同时考虑集中电源工作工程中 将持续散热,可以设于防排烟机房、消防水泵房控制室内,设于 消防水泵房控制室内其防护等级不低于IP30o

问题十四:避难层(间)非消防线缆的燃烧性能选择A级还 是Bl级?

讨论成果:按《民用建筑电气设计标准》GB 51348-2019编制 组答疑执行,建筑高度不大于25Om超高层建筑的避难层(间)非 消防线缆可选择A级或Bl级燃烧性能的线缆;若选用Bl级燃烧 性能的线缆,须规定其产烟毒性为t0级、燃烧滴落物/微粒等级为 d0级;建筑高度大于250m超高层建筑避难层(间)非消防线缆 应选用A级燃烧性能的线缆。

问题十五:如何确定消防配电线缆的产烟毒性、燃烧滴落物/ 微粒等级等参数?

讨论成果:按照《民用建筑电线电缆防火设计标准》


31


DBJ/T50-164-2021编制组解释,消防电线电缆的产烟毒性、燃烧 滴落物/微粒等级不低于该场所非消防线缆相应信息,如下表:


适用场所

消防电线电缆产烟毒性、 燃烧滴落物/微粒等级

特级场所中的公共建筑

tO

学校、幼儿园、医院、老年人照明设施;

一级、二级场所中的地下或半地下公共建筑

tO

一级场所中的金融建筑,市级电力调度、广播电视、电

_______信建筑,其他人员密集场所_______

tldl

其他一级、二级场所中公共建筑

t2d2

住宅建筑

特级场所

tldl

其它场所

t2d2


问题十六:公共车库非消防电线电缆燃烧性能、产烟毒性、 燃烧滴落物/微粒等级如何确定?

讨论成果:当车库内设有充电设施时,非消防电线电缆按不 低于B2 (tldl)选择;路由经过车库但服务于其他场所的线缆 需根据线缆的整体性确定其燃烧性能及附加信息。

问题十七:当建筑仅设置一层电井兼该配电间时,与普通电 缆同在该配电间内敷设的消防线缆是否要采用矿物绝缘类线缆?

讨论成果:根据《民用建筑电气设计标准》GB 51348-2019 编制组解释:"设计中均按照最不利的情况选择干线耐火电缆,到 机房后可降低点标准,如干线采用950℃3h耐火电缆,机房内 可选择750℃1.5h耐火电缆。”消防线缆与普通电缆在单层配电 间内敷设时,可按机房内敷设选择750℃1.5h耐火电缆。


32


问题十八:双电源切换箱至应急照明配电箱(或集中电源)、 防火门监控分机、消防广播功放等的配电线路,与普通线缆同井 敷设时,是否需要采用矿物绝缘类不燃性电缆?

讨论成果:双电源切换箱至应急照明配电箱(或集中电源)、 防火门监控分机、消防广播功放等的配电线路,属于分支线路, 可以采用非矿物绝缘类耐火线缆。

问题十九:商业的露天走廊(非首层)是否需要设置消防应 急照明和疏散指示灯?

讨论成果:根据规范及条文说明,如建筑定性此走廊为本层 商铺的疏散通道,则应按规范要求设置消防应急照明和疏散指示 灯。

问题二十:当灯具采用自带蓄电池供电方式时,消防应急照 明是否可以兼用日常照明?

讨论成果:在照度值满足日常照度值要求的情况下,当灯具 采用自带蓄电池供电方式时,消防应急照明可以兼用日常照明; 在住宅建筑中,楼梯间照度要求相对较低(501x),使用频率较低, 基于节约投资的角度考虑消防应急照明可兼用日常照明。公共建 筑楼梯间照度要求相对较高(501x-IOOlx),使用频率相比住宅建 筑高很多,考虑到疏散照明灯具以及相应配套的集中电源的投入 及维护成本,不建议消防应急照明兼用日常照明。

问题二十一:当车库防火分区的疏散路径借助住宅建筑首层 大厅出口疏散时,从封闭楼梯间出来后经过住宅首层大堂的整个


33


疏散路径是否需设置消防应急照明和疏散指示?

讨论成果:从封闭楼梯间出来后经过住宅首层大堂的整个疏 散路径应设置消防应急照明和疏散指示灯,并应为独立的疏散照 明配电回路。

问题二十二:商业网点是否均应设置消防应急照明和疏散指 示灯具?

讨论成果:建筑面积大于200m2的商业网点应设置消防应急 照明灯具,当室内最远点至通向疏散走道的门直线距离超过15m 的情况下,应设置疏散指示标志灯具。

问题二十三:停车数量W50辆的汽车库,是否需要设置消防 应急照明和疏散指示标志灯?

讨论成果:停车数量050辆的公共汽车库要设置消防应急照 明和疏散指示标志灯。

问题二十四:地面上安装的消防疏散标志灯具配电线路的无 卤低烟特性是否要与其它线路相同?

讨论成果:地面上安装的消防疏散标志灯具的耐腐蚀橡胶配 电线缆的无卤低烟特性应按其敷设的相关场所电线电缆使用场所 等级要求设计。

问题二十五:防烟楼梯间与封闭楼梯间是否应设置专用的应 急照明配电箱?

讨论成果:应急照明配电箱和集中电源配电箱安装位置应设


34


置于值班室、设备机房、配电间或电气竖井内;当应急配电箱设 置于电井或配电间内时,可以不单独设置楼梯间专用应急配电箱, 但防烟楼梯间和封闭楼梯间应采用专用分支回路配电。

问题二十六:只有局部房间为"老年人活动室"的社区服务 中心,整栋建筑未设火灾自动报警系统,"老年人活动室"是否需 要设置消防报警系统?

讨论成果:老年人活动室如果不属于《建筑防火通用规范》GB 55037-20228.3.2条第8款的老年人照料设施中,可不设置。

问题二十七:当建筑物内无火灾自动报警系统时,消火栓系 统的联动控制如何执行?

讨论成果:消防水泵应由消防水泵出水干管上设置的压力开 关、高位消防水箱出水管上的流量开关,或报警阀压力开关等开 关信号应能直接自动启动。

项目设有火灾自动报警系统,当项目内部分建筑物不需设置 火灾自动报警系统且采用消防水泵加压给水时,需在其内设置消 火栓按钮并接入项目火灾自动报警系统。

问题二十八:无需设置火灾自动报警系统的建筑,当仅设有 防火卷帘、电动挡烟垂壁或常开防火门时,如何联动控制?

讨论成果:联动控制措施如下:

1.对防火卷帘或电动挡烟垂壁,可采用以下两种方式:

(a)在防火卷帘或电动挡烟垂壁的两侧设置相应的火灾探测 器,在有人值班的场所设置区域报警控制器,由区域报警控制器


35


的外控接点完成防火卷帘或电动挡烟垂壁的联动控制;

(b)采用自带火灾探测器的控制器,火灾探测器设置在防火 卷帘或电动挡烟垂壁的两侧,联锁控制防火卷帘或电动挡烟垂壁 下降。

2.对常开防火门,可采用以下两种方式:

(a)在常开防火门两侧设置相应的火灾探测器,在有人值班 的场所设置区域报警控制器,由区域报警控制器的外控接点完成 常开防火门的联动控制;

(b)采用热释放闭门装置联锁控制防火门关闭,或选择自带 火灾探测器的控制器,火灾探测器设置在防火门两侧,联锁控制 防火门关闭。

当项目设有消防控制室时,上述联动信号需传送至消控室。

问题二十九:未设置火灾自动报警系统的建筑内,其配电间 设置有气体灭火系统,如何联动控制?

讨论成果:对于未设置火灾自动报警系统的建筑,其配电间 设置有气体灭火系统时,可采用两种火灾报警联动触发装置与气 体灭火控制盘完成联动控制功能。当项目设有消防控制室时,气 体灭火系统动作信号需传送至消控室。

问题三十:建筑高度超过IOom (含Ioom)35层及以上的 住宅建筑,是否每栋楼都要设置消防控制室?

讨论成果:建筑高度超过IoOm (含Ioom)35层及以上的 住宅建筑,每栋楼可不单独设置消防控制室。


36


问题三十一:设有火灾自动报警系统的住宅建筑中,是否每 栋住宅公共门厅均要设置区域火灾报警控制器?

讨论成果:设有火灾自动报警系统的住宅建筑,每个单元应 设置区域火灾报警控制器或区域显示器(火灾显示盘)。

问题三十二:火灾自动报警系统DC24V电源线是否需要设置 总线短路隔离器?

讨论成果:DC24V电源线可不设置总线短路隔离器。

1.系统总线上设置短路隔离器的目地是保证整体运行稳定 性,在对故障部件进行隔离时,最大限度地保障系统的整体功能 不受故障部件的影响。应根据采用的总线结构形式,选择对应的 总线短路隔离器。

2.根据《火灾报警设备专业术语》(GB/T4718-2006)6.6 条,总线短路隔离器(isolator):用在传输总线上,在总线短路时 通过使短路部分两端成高阻态或开路状态,从而使该短路故障的 影响仅限于被隔离部分,且不影响控制器和总线上其他部分的正 常工作的器件。

问题三十三:超过12米的高大空间,在设有成套智能水炮系 统情况下,是否需要另设探测器?

讨论成果:除自动跟踪定位射流灭火系统自设的探测装置外, 电气专业增设另外一种火灾参数的火灾探测器。

问题三十四:电梯轿厢内直接与消防控制室通话的专用电话, 能否用电梯五方通话系统代替?

37


讨论成果:当电梯五方对讲系统主机设置在消防控制室内, 且电梯五方通话系统的设备均通过消防认证、通信线路满足《消 防设施通用规范》GB 55036-202212.0.16条规定时,可用电梯 五方对讲的轿厢分机替代轿厢内的消防专用电话。

问题三十五:消防设备电源监测点设在双电源切换开关的进 线端还是出线端?

讨论成果:建议当备用电源为冷备用时,监测点可设在双电 源切换开关出线端;当备用电源为热备用时,监测点设在双电源 切换开关的进、出线端。

问题三十六:总线穿越防火分区时,在穿越处设置的总线短 路隔离器,是否可以设在防火墙(楼板)的任一侧?

讨论成果:短路隔离器是考虑一旦某个现场部件出现故障, 在对故障部件进行隔离时,可以最大限度地保障系统的整体功能 不受故障部件的影响,短路隔离器设在防火分隔的任一侧,作用 是一样的。


38


第五章消防防排烟专业

问题一:《建筑防烟排烟系统技术标准》GB 51251-20171.0.2条规定"对于有特殊用途或特殊要求的工业与民用建筑,当 专业标准有特别规定的,可从其规定。"能否具体说明有哪些规 范、哪些内容可以按照专业规范执行?

讨论成果:下列为目前常用的专业类规范标准,其防烟、排 烟系统的设计可按照专业规范标准相应的要求进行设计,专业规 范标准如有调整,按调整后的规定执行。其他未列出的专业规范 标准也可从其规定。专业规范标准没有特别规定的,应按照《建 筑防火通用规范》GB 55037-2022 (以下简称《建通规》)、《消 防设施通用规范》GB 55036-2022 (以下简称《设通规》)、《建 筑设计防火规范》GB 50016-2014( 2018年版)(以下简称《建规》)、 《建筑防烟排烟系统技术标准》GB 51251-2017(以下简称《烟标》) 的规定及本疑难问题研究的相关解释执行:

1.汽车库、修车库排烟系统排烟量计算及防烟分区划分可按 照《汽车库、修车库、停车场设计防火规范》GB 50067-20148.2节相关规定执行;

2.电影院、剧院和音乐厅的观众厅的排烟量可按照《电影院 建筑设计规范》JGJ 58-20086.1.9条条文说明执行,排烟量按 13/h换气次数或90m3/ (m2 ∙ h)计算取大值;

3.物流建筑的排烟系统的设计可按照《物流建筑设计规范》 GB 51157-201615.7.1〜15.7.8条执行,并按《建通规》的要求 设置应急排烟排热设施;


39


4.冷库建筑排烟系统的设计可按照《冷库设计标准》GB 50072-2021 9.5 章执行;

5.医药工业洁净厂房的排烟系统的设计可按照《医药工业洁 净厂房设计标准》GB 50457-20199.2.18条执行;

6.医院洁净手术部建筑的排烟系统的设计可按照《医院洁净 手术部建筑技术规范》GB 50333-201312.0.1012.0.10条执行;

7.生物安全实验室建筑的排烟系统的设计可按照《生物安全 实验室建筑技术规范》GB 50346-20118.0.7~8.0.9条执行;

8.广播电影电视建筑的排烟系统的设计可按照《广播电影电 视建筑设计防火标准》GY 5067-20178章执行;

9.地铁、轻轨交通工程的防排烟系统的设计可按照《地铁设 计防火标准》GB 51298-20188章执行;

10.人防工程的防排烟系统的设计可按照《人民防空工程设计 防火规范》GB 50098-2009执行。

问题二:机械防排烟系统气流组织更清晰,排烟效果更好, 为何提倡优先采用自然防排烟系统?

讨论成果:机械防排烟系统属于偶尔使用、长期闲置的消防 机械设施,设备老化失修会对消防安全带来很大的隐患。保证机 械系统的可靠运行,对运行维护的要求很高。自然防排烟系统的 最大的优点是简易可靠,而且考虑重庆属于微风地区,自然条件 (室外风速、风压、风向)对防排烟的影响相对较小,所以自然 防排烟系统的可靠性就更加明显。基于这种考虑,结合《烟标》 的规定,在满足规范标准规定的条件下,建筑防排烟系统应优先 采用自然通风(排烟)系统。


40


问题三:防排烟风管、风口的设计风速按设计风量还是计算 风量确定?

讨论成果:加压送风机、排烟风机的设计风量(公称风量) 在计算风压条件下不应小于计算风量的1.2倍。

加压送风管、排烟风管、送风口、排烟口可按照计算风量进 行设计选型。

防排烟管道内壁为金属时,管道设计风速不应大于20m∕s;管 道内壁为非金属时,管道设计风速不应大于15m/s

问题四:防排烟系统接室外的竖向井道是否可以采用土建风 道?消防系统是否可以与其他通风空调系统共用井道?

讨论成果:加压送风系统吸入段、排烟系统出风段直接对外 的竖向井道可采用严密且内表面光滑的土建风道。通风系统的总 阻力应计入土建风道阻力。

排烟系统、排风系统可合用对外竖向井道。

加压送风系统、补风系统、空调新风系统可合用对外竖向井 道。

问题五:《设通规》第11.2.211.3.3条中规定的每段的系统 服务高度是否包含从风机到服务楼层之间的风管高度?

讨论成果:《设通规》中“每段的系统服务高度"是指系统 服务楼层范围的建筑高度,不包括系统服务楼层以外空间的风管 高度。

问题六:位于建筑高度大于50m的公共建筑内,仅为裙楼服


41


务的疏散楼梯间、前室,是否可以采用自然通风系统?

讨论成果:基于问题二优先采用自然通风系统原则,建筑高 度大于50m的公共建筑、工业建筑中,仅为该建筑50m高度以下区 域服务的疏散楼梯间、前室,其防烟系统均可采用自然通风系统。

问题七:住宅建筑与其他功能的建筑合建时,其防烟系统的 方式如何确定?

讨论成果:住宅建筑与其他使用功能的建筑合建时,住宅部 分防烟系统的设置根据该建筑的总高度确定;非住宅部分防烟系 统的设置根据其服务高度按公共建筑确定。

问题八:共用前室与消防电梯前室合用的前室是否可以采用 自然通风系统?

讨论成果:共用前室与消防电梯前室合用的前室(以下简称 "三合一前室")应采用机械加压送风的防烟方式。

问题九:采用"三合一前室"的剪刀楼梯间是否可以采用自 然通风系统?

讨论成果:采用"三合一前室”的剪刀楼梯间在具备自然通 风条件时,可采用自然通风的防烟方式。

问题十:前室加压送风口采用顶送时对风口位置的设置有何 规定?采用侧送时,正对前室入口门所在的墙面是否可以?正对 是不是指风口中心线和门的中心线对齐?

讨论成果:独立前室、共用前室、合用前室及三合一前室采


42


用机械加压送风,防烟楼梯间采用自然通风的防烟方式时,前室 加压送风口的设置应满足以下要求:

1.当前室的加压送风口设置于前室的顶部时,送风口不应贴 邻楼梯间疏散门布置(如图4.10-12所示)。




4.1(M送风口布置不合理示意(一)


4.10-2送风口布置合理示意(一)


(贴邻楼梯间疏散门)




可开启轴睛飘髄



4.10-3送风口布置不合理示意(二)

(不正对前室入口)


4.10-4送风口布置合理示意(二)


2.当前室送风口设置于墙面时,送风口应正对走道进入前室


43


的入口,且不应被遮挡(如图4.10-34所示);如前室有多个入 口,应设置多个送风口正对前室各入口。若设置多个送风口正对 前室各入口确有困难时,则按本条第1款执行。

问题十一:如果仅有首层扩大前室不满足《烟标》第3.1.5条 第一款的要求情况下,是否可以仅在楼梯间设置机械加压送风系 统?地下楼梯间是否适用《烟标》3.1.5条?

讨论成果:建筑高度小于或等于50m的公共建筑、工业建筑 和建筑高度小于或等于IOom的住宅建筑,当仅在首层独立前室 (扩大前室)有多个门与走道或房间相通,其余楼层采用独立前 室且均满足仅有一个门与走道或房间相通时,可仅在楼梯间设置 机械加压送风系统。建筑的地下部分也适用《烟标》第3.1.5条及 本条款的规定。

问题十二:《烟标》第3.1.6条提及的楼梯间共用,疏散门分 别开向同一前室是否属于共用?如地下部分采用封闭楼梯间疏散 门在一层开向门厅,地上采用敞开楼梯,在门厅疏散,这种情况 是否属于共用?扩大的封闭楼梯间开向门厅必然就是开向楼梯 间,是否算共用?

讨论成果:地上楼梯间与地下楼梯间位于相同平面位置,在 一层楼梯间内设有防火隔墙对地上、地下部分进行分隔,如防火 隔墙上设有连通门时,认为楼梯间“共用";如防火隔墙上没有 任何开口,不论楼梯间疏散门是否开向同一空间,均认为地上地 下楼梯间“不共用"。如地上为敞开楼梯或首层为扩大的封闭楼 梯间,认为地上地下楼梯间"不共用”。


44


问题十三:不超过3层的楼梯间,发生火灾时前室的正压送 风口需全部打开,采用常开风口更直接,也更可靠,是否可行?

讨论成果:设置机械加压送风系统的前室应设置常闭风口, 发生火灾时,应开启该防火分区内着火层及其相邻上下层所有前 室的常闭送风口,同时开启相应加压送风机。当前室加压送风系 统负担的楼层为3层或3层以下时,可采用常开送风口。

问题十四:同一避难走道往往接有多个前室,当设置机械加 压送风系统时,每个前室是否可以不单独设置?

讨论成果:同一避难走道的多个前室可合并设置机械加压送 风系统,系统的计算风量按开向所有前室的疏散门断面积之和乘 以断面风速LomZS计算。

问题十五:采用自然通风防烟方式的封闭楼梯间、防烟楼梯 间的开窗面积有何规定?

讨论成果:采用自然通风防烟方式的封闭楼梯间、防烟楼梯 间,应在顶层设置面积不小于L0m2的可开启外窗或开口;当建筑 高度大于Iom时,尚应在楼梯间的外墙上每5层内设置总面积不 小于2.0r2的可开启外窗或开口,且布置间隔不大于三层。楼梯间 顶层设置的In?可开启外窗或开口,可计入每5层内可开启外窗 或开口总面积,但直通室外的疏散门面积不计入。

问题十六:《烟标》第3.1.4条是否应该包括建筑地下部分的 防烟楼梯间?

讨论成果:建筑地下部分的防烟楼梯间及其独立前室、消防


45


电梯前室、合用前室、共用前室,当无自然通风条件或自然通风 不符合要求时,均应采用机械加压送风系统。


问题十七:建筑地下部分的封闭楼梯间是否可以采用自然通 风防烟方式?

讨论成果:建筑地下部分的封闭楼梯间采用自然通风防烟方 式时应满足下列条件:

1.建筑内的地下楼梯间与地上楼梯间不共用。

2.地下楼梯间埋深("埋深”是指楼梯间最低层室内地面与 首层室外出入口地坪的高差)不超过10米,且地下部分的疏散楼 层数不超过两层。

3.应在地下楼梯间最高部位设置面积不小于L0m2的可开启 外窗或开口。如在最高部位设置确有困难,开窗或开口可设于该 地下楼梯间最高休息平台以上的外墙上部区域,且外窗或开口的 下沿应高于室外地坪。(如图4.17-1、图4.17-2所示)


1



4.17-1地下室楼梯间自然通风的外窗设置(一)


46



4.17-2地下室楼梯间自然通风的外窗设置(二)


问题十八:首层前室是疏散的最终出口,人流量最大,有的 采用扩大前室,和其他层有比较大的差异。从可燃物多少角度, 扩大前室因为包含了门厅,在后期使用时常有少量家具等,虽然 不属可燃物较多,但相比普通前室安全系数降低;首层前室由于 人流较多,火灾初期就被发现尽早被扑灭的概率更大,且直通室 外,疏散便利,安全系数相对封闭房间更高。所以其防烟方式是 否和其他层有不同的区分?

讨论成果:首层前室(扩大前室)可按以下方式设置防烟:

1.前室直通室外的门的开口面积不计入自然通风面积。

2.当首层前室为扩大前室时,应优先采用自然通风防烟方式 (不受其建筑高度限制),其可开启外窗或开口的面积不应小于 3m2,且不应小于扩大前室地面面积的2%,直通室外的门的开口 面积不计入自然通风面积。当自然通风不满足要求时,应设置机 械加压送风系统,送风量按门洞断面风速l.Om/s计算,门洞断面 积按走道或房间进入该扩大前室最大的两扇疏散门之和计算,不 计入直通室外的门。


47


3.首层扩大前室包括的门厅靠外墙区域空间净高大于6.0m、 采用自然通风防烟方式时,其可开启外窗或开口的面积不应小于 3m2,且不应小于扩大前室地面面积的3%,直通室外的门面积不 计入自然通风面积。可开启外窗或开口应设于门厅的高处。

4.计算楼梯间、其他楼层前室的加压送风量时,可不考虑首 层楼梯间、前室的防烟方式及开启门的数量、形式,按其他楼层 的情况进行设计,但楼梯间的服务高度应从首层算起。

5.如首层前室(扩大前室)采用自然通风防烟方式,其他楼 层前室采用机械加压防烟方式,首层前室(扩大前室)宜设置同 上一层相同面积的送风口作为增强措施。

问题十九:《设通规》、《烟标》中对楼梯间、前室、避难 间可开启外窗的面积有不同表达,在施工图审查及消防验收时经 常会被提出不同的执行标准,应明确两者的区别?

讨论成果:楼梯间、前室的可开启外窗面积是指外窗可开启 的窗扇的净面积,与外窗的开启形式、开启角度无关。避难层(间) 可开启外窗的面积是指可开启部分的有效面积,与外窗的开启形 式、开启角度有关。外窗有效面积的计算可按《烟标》第4.3.5条 的规定执行。

可开启的窗扇的净面积及外窗有效面积均不应计入窗口固定 扇及窗口四周的固定窗框架面积。

问题二十:直灌式加压送风系统风机的设计风量如何确定? 对于只有三层的楼梯间,按照《烟标》的要求,“楼梯间宜每隔2 ~3层设一个常开式百叶送风口",可以只设一个送风口,如采


48


用对楼梯间直接送风的方式,这种情况是否属于直灌式送风?

讨论成果:直灌式加压送风系统风机的设计风量(公称风量) =计算风量*1∙2*1.2°

楼梯间服务楼层为3层及以下,只设置一个送风口向楼梯间 直接送风,不属于直灌式送风,该加压送风系统风机的设计风量 (公称风量)=计算风量*1.2

加压送风系统的风量按《烟标》第3.4.5条的规定计算确定。

问题二十一:《烟标》第3.3.4条中关于地上与地下部分共用 机械加压送风系统中,"地下部分为汽车库或设备用房"是指整 个建筑、整层还是一个防火分区?对住宅建筑的地下部分,有时 有少量储藏间,是否可以包含?

讨论成果:《烟标》第334条中关于地上与地下部分共用机械 加压送风系统中,"地下部分为汽车库或设备用房"是指地下部分 的同一个防火分区内所有功能仅为汽车库、非机动车库或设备用房。 住宅建筑的地下部分除汽车库、非机动车库和设备用房外,同一个 防火分区内设有总面积不超过200 πf的储藏间时,可参照此条执行。

问题二十二:《烟标》第3.3.5条对加压风机的进风口与排烟 风机的出风口的距离是位于同一面的正下方和同一水平线,对设 置于斜向或不同面的风口其边缘之间的距离如何确定?

讨论成果:机械加压送风风机的进风口与排烟风机的出风口 应尽量布置在位于不同朝向的建筑立面上,其相邻边缘之间的距 离应符合《烟标》第3.3.5条及下列规定:

1.当两者处于建筑物不同朝向的非相邻建筑立面时,两者之


49


间沿墙面之间的水平距离不应小于IOm,或垂直距离不应小于3m;

2.进风口与排烟出口设在同一建筑立面上时,可根据两者之 间的最小垂直距离,查表4.22确定两者之间的最小水平距离。


4.22进风口与排烟出口之间的最小水平距离m)


加压系统的进风口 与排烟系统的出风 口的位置关系

两者相邻边缘之间的垂直距离H

H≤3

3<H≤6

H>6

两者相邻边缘之间的最小水平距离

20

10

O


3.建筑物相邻立面的室外夹角小于等于180。或室外夹角大 于180。且小于225。时(如图4.22/所示),相邻立面上的进风 口与排烟出口认为位于同一建筑立面,其水平距离如图所示,且 应满足表2.17的要求;


水平比高R+b


4.22-1进、出风口布置平面示意图


4.建筑物相邻立面的的室外夹角大于或等于225。时,相邻 立面上的进风口与排烟出口之间的水平折线距离应不小于10m, 或两者之间的垂直距离不小于3mo (如图4.22-2所示)


水平更离二Q+b210m


4.22-2进、出风口布置平面示意图


50


问题二十三:加压送风机的专用机房,是否可以采用合用机


房?

讨论成果:加压送风机应设置在专用机房内,如独立布置确 有困难时,可按以下规定采用合用机房:

1.加压送风机可与补风机、送风机合用机房。

2.加压送风机可与空调箱、排风机合用机房,但不得与排烟 风机、事故排风机合用机房,机房内不得设有排烟或事故排风管 道。

问题二十四:若干个加压送风管道是否可以设置在同一管道 井中?其耐火极限如何规定?

讨论成果:数个加压送风系统的风管可设于同一管道井内, 管道的耐火极限可不作要求。加压送风管不应与排烟风管合用管 道井,当加压送风管与补风系统及其他通风、空调风管合用管道 井时,加压送风管的耐火极限不低于LOk

问题二十五:设置机械加压送风系统的楼梯间,在暖通图纸 上是否需要表达固定窗或应急排烟窗的位置?

讨论成果:设置机械加压送风系统并靠外墙或可直通屋面的 封闭楼梯间、防烟楼梯间,暖通专业应在消防平面图上说明该楼 梯间需设置常闭式应急排烟窗,应急排烟窗的面积和位置详建筑 专业。并将楼梯间设置了机械加压送风系统的资料提交建筑专业, 两个专业的表达应统一。

设置了常闭式应急排烟窗的楼梯间可不再设置固定窗。


51


问题二十六:直接对外的避难走道或避难走道前室与疏散走 道之间的余压值有何要求?

讨论成果:采用机械加压送风的避难走道前室与疏散走道的 压差应为25~30Pa。避难走道和疏散走道之间的压差不做要求。

如避难走道可直接对外疏散,且需和其前室分别设置机械加 压送风系统时,送风口应尽量布置在远离疏散出口、靠近避难走 道前室的位置。

问题二十七:《烟标》第3.4.6条公式中特殊情况下AkNi 以及门洞风速如何取值?

讨论成果:楼梯间、前室加压送风量应按《烟标》第3.4.6条 的公式进行计算,公式中:

LAk为"一层内开启门的截面面积”,当公共建筑各楼层的 门数量不一致时,Ak*Nι可取连续Nl层的总开启门截面面积的最 大值。

2.住宅建筑地上及地下部分的前室,包括独立前室、消防电 梯前室、共用前室、合用前室、三合一前室,Ak均可按一个门的 面积取值。

3.前室采用常闭风口,计算风量时Nι=3,当前室加压送风系 统服务的实际楼层数少于3层时,Nl按实际层数取值。


4.地下室楼梯间Nl取值执行下表:


地下室功能及楼层数

Nl

地下仅为汽车库、非机动车库、设备用房

1

地下有其他功能时(经常有 人停留或可燃物较多)

服务的地下楼层为1层或2

实际楼层数量

服务的地下楼层大于等于3

3


52


5.封闭楼梯间的门洞风速按不小于LOmzS取值。

6.当防烟楼梯间采用机械加压送风、前室采用自然通风时, 防烟楼梯间加压送风量计算按通向楼梯间疏散门的门洞风速不小 于1.0m∕s取值;当系统服务高度大于24m时,按计算值与《烟标》 表342-3中的较大值确定。

问题二十八:坡地建筑的防烟方式如何确定?

讨论成果:坡地建筑按照不同室外疏散地坪,可分为平顶层、 坡底层。按照楼层区间位置,可分为上层、吊层、地下层,其对 应的疏散楼梯间可分为上段、中段、下段楼梯间。坡地建筑疏散 楼梯间、前室的防烟方式按照《设通规》、《烟标》及本办法的 规定确定:

1.根据疏散层位置的不同,标高最低的疏散层之上的楼梯间 定义为地上部分,之下的楼梯间定义为地下部分。

2.坡地建筑的上段、中段、下段楼梯间的防烟系统应分别独 立设置。当受建筑条件限制时,可共用机械加压送风系统。

(1)如上段、中段楼梯间均属于地上部分,上段和中段可共 用机械加压送风系统。

(2)地上部分与地下部分的楼梯间可共用机械加压送风系 统,但楼梯间的上、中、下三段不应共用一个机械加压送风系统。 且应满足《烟标》第3.3.4条及"问题二十一"条的规定。

(3)共用的机械加压送风系统的总服务高度不应大于IOO米。

问题二十九:贴邻下沉式广场等室外空间布置的疏散楼梯间 及前室的防烟设计如何执行?

53


讨论成果:贴邻下沉式广场等室外空间布置的疏散楼梯间及 前室的防烟设计可参照问题二十七条关于坡地建筑的规定执行。

问题三十:在计算排烟量时,如何区分中庭和高大空间?

讨论成果:对于贯通二层或二层以上、对边最小净距不小于 6m、贯通空间的最小投影面积大于IOOm2的室内空间,且二层或 二层以上周边设有与其连通的使用场所或回廊,该贯通空间按照 中庭进行排烟设计。如果周边场所采用固定的防火分隔与贯通空 间进行分隔时,此贯通空间按高大空间进行排烟设计。

《烟标》第4.1.3条第3款中"周围场所各房间” "周围场所 任一房间"是指周围场所经常有人停留或可燃物较多且开口通向 回廊的房间,不包括开口通向回廊的设备间、配电间及卫生间。

问题三十一:敞开式外廊、架空层、走道、不规则平面、汽 车库等场所防烟分区如何划分?

讨论成果:防烟分区的划分应符合以下规定:

1.敞开式外廊(单侧或双侧与室外直接相通的通道)可不划 分防烟分区。

2.对于开敞的架空层,如建筑专业未进行防火分区划分且架 空层内任一点距室外开口处(包括侧向开口及架空层顶部开口) 的水平距离不大于30m时,架空层可不划分防烟分区。

3.走道主体宽度不大于2.5m时,其防烟分区的长边长度不应 大于60m;走道主体宽度不大于3.0m时,其防烟分区的长边长度 不应大于50m。当走道局部加宽(局部加宽的累计长度不应超过 走道防烟分区总长度的1/4)或防烟分区包含电梯厅,且局部加宽


54


后的走道总面积不大于150r2时,可按走道主体宽度执行上述的


防烟分区长边长度要求。

4.走道、回廊的防烟分区长边长度按最远两点之间走道中线


的沿程距离确定。(如图4.30-1 ~4.30-4所示)



4.30-1 “L”形走道         图4.30-2 “Z”形走道



防烟分区长边 L=max{L(A, D), L(B, C), L(A, C), L(B, D), L(A, B), L(C, D)} L(A, D)=L1+L5+L4,余同

4.30-3 形走道(一)


55



防烟分区长边 L 长边=max{L(A, D), L(B, C), L(A, C), L(B, D), L(A, B), L(C, D)} L(A, B)=L1+L2+L3+L4, L(A, D)=L1+L9+L6+L7+L8,余同

4.30-4 "H”形(二)及"回”形走道

5.对于L形、多边形等不规则形状防烟分区,其长边长度按 防烟分区最长自然边的长度确定(如图4.30-5所示);对于圆形 防烟分区,其长边长度为其直径(如图4.30-6所示)。



防烟分区长边 L=max{Ll, L2, •••, Ln}


防烟分区长边L=D


4.30-5 "L”形、多边形防烟分区


4.30-6圆形防烟分区


6.空间净高大于9m的场所,应按《烟标》第4.2.4条的规定


56


划分防烟分区,防烟分区之间可不设置挡烟设施。

7.汽车库防烟分区长边最大允许长度不做规定。

问题三十二:自然排烟窗(口)的手动开启装置有哪些方式?

讨论成果:自然排烟窗(口)的手动开启装置可采用机械操 作机构、电动操作机构、气动操作机构;自然排烟窗(口)的自 动开启设施可采用通过火灾自动报警系统联动开启或采用温度释 放装置自动开启两种方式。

问题三十三:竖向机械排烟系统在同一层内是否可以负担多 个防火分区的排烟?

讨论成果:建筑内的竖向机械排烟系统可负担多个防火分区 的排烟,但在同一楼层只能负担一个防火分区的排烟。

问题三十四:设有多个排烟兼排风风机的机房是否属于合用 机房?

讨论成果:排烟风机专用机房独立布置确有困难时,可按以下 规定布置:

1•数台排烟风机(包括排烟兼排风风机)可设于同一机房内, 不属于合用机房。

2•排烟风机与其他通风机、空调箱设于同一机房内属于合用 机房,机房内应设置自动喷水灭火系统。

3.排烟风机不得与加压送风机和排烟补风机合用机房。

问题三十五:数个排烟风管设于同一管道井内,其耐火极限


57


如何规定?

讨论成果:只用作排烟系统(含排烟兼排风系统)的数个风 管可设于同一管道井内,管道的耐火极限不低于0∙5h

问题三十六:排烟管道穿越防火分隔体时风管的耐火极限的 规定?

讨论成果:除满足《烟标》第4.4.8条规定的耐火极限要求外, 排烟管道穿过防火隔墙、楼板和防火墙时,尚应满足《建规》第 6.3.5条的要求:防火阀两侧各2.0m范围内风管的耐火极限不应低 于该防火分隔体的耐火极限。

问题三十七:走道、净空较低的房间以及车库,按照单个排 烟口最大排烟量的要求会导致风管上布置很多排烟口,严重影响 空间的使用和装饰效果,是否可以按风速来控制?

讨论成果:净高不大于3m的室内空间(含走道)、净高不大 于4m的车库,单个排烟口的最大排烟量可按排烟口有效面积下计 算风速不大于10m∕s确定。

问题三十八:同一防烟分区内多个机械排烟口边缘之间的最 小间距如何确定?

讨论成果:同一防烟分区内多个机械排烟口边缘之间的最小 间距Lmin应按下式计算确定:

Lmin=O.9Vel/2   (m)

式中Ve为一个排烟口的排烟量(nP/s)


58


问题三十九:按照《建通规》第2.2.5条需设置应急排烟排热 设施的地上建筑或部位,是否要按照《烟标》第4.1.4条的规定设 置固定窗?

讨论成果:按照《建通规》第2.2.5条的规定设置了应急排烟 排热设施的地上建筑或部位,可不再按照《烟标》第4.1.4条的规 定设置固定窗。

应急排烟排热设施由建筑专业设计,必要时暖通专业予以配 合。

问题四十:从《烟标》表4.6.3自然排烟风速的数值可以参照 对比看出,自然排烟下的自然补风和机械排烟下的自然补风差异 很大,自然补风风速是很低的。并且自然排烟窗(口)存在着进 风、排烟的中和面,如何计算自然排烟和自然补风的面积?

讨论成果:补风系统的设置应符合《设通规》、《烟标》及 下列规定:

1.通过补风系统从室外进风口或从直通室外的新风竖井吸入 新风均认作为“可直接从室外引入空气补风"。民用建筑通过直 通室外的门、门斗进行自然补风,可认作为“可直接从室外引入 空气补风”。

2.水平方向布置的机械排烟系统,不同防火分区的补风系统 应独立设置。

3.机械排烟系统,采用机械补风时,机械补风量应不小于对 应排烟系统排烟量的50%,且不宜大于系统排烟量的80%;采用 自然补风时,自然补风口风速不宜大于3m/s

4.机械排烟系统,其排烟口与补风口的位置应按《烟标》第


59


4.5.4条执行。


5.同一防火分区内,可利用同一连通空间内相邻防烟分区的 疏散外门、可开启外窗或其他进风通路进行自然补风。

6.自然排烟系统,不应采用机械补风系统,自然补风口应在 储烟仓下沿以下,水平位置可不限。自然排烟窗(口)位于储烟 仓下沿以下的有效开启面积可计入自然补风面积。

7•排烟风机出风口与补风风机进风口之间的间距可按本办法 "问题二十二"条规定数值的1/2执行。

问题四十一:《烟标》表4.6.3中对于同时采用侧开窗和顶开 窗排烟的自然排烟窗(口)有效面积如何计算?

讨论成果:公共建筑、工业建筑中空间净高大于6m的场所, 采用《烟标》表4.6.3中的计算排烟量计算自然排烟窗(口)面积 时,所需自然排烟窗(口)有效面积(侧开窗)=计算排烟量/自然 排烟侧窗(口)风速,其中,自然排烟侧窗(口)风速按《烟标》 表463查取。当同时采用顶开窗和侧开窗两种方式时,两种方式 的有效开窗面积叠加计算,顶开窗面积按1.4倍折算成侧开窗面 积。

问题四十二:公共建筑内均为小于IOOn?满足自然排烟条件 的地上有窗房间,与其相通的走道或回廊的排烟量能否按照《烟 标》第4.6.3条第4款执行?

讨论成果:可以。走道、回廊的排烟应符合下列规定:

1.公共建筑的走道或回廊,如与其相连通的房间(卫生间、 配电间等除外)均设有自然排烟设施或设有机械排烟系统时,走


60


道或回廊的排烟设计执行《烟标》4.6.3条第4款;其余情况执行 《烟标》4.6.3条第3款。

2.除相关规范有特殊规定外,工业建筑、住宅建筑的走道排 烟参照《烟标》4.6.3条第34款及本办法上一款的要求执行。

3.《烟标》463条第3款"两侧自然排烟窗(口)的距离不 应小于走道长度的2/3"是指两排烟窗(口)中心的距离。

问题四十三:对于同一防火分区内各房间面积均小于50m2、 房间总建筑面积大于200m2的地下房间,排烟系统能否只在走道 排烟,排烟量如何计算?

讨论成果:除设置在四层及以上楼层、地下或半地下的歌舞 娱乐放映游艺场所外,地下或半地下建筑(室)、地上建筑位于 同一防火分区内的无窗房间,如各房间面积均小于50m2、房间总 建筑面积大于200m2,房间内可不设置排烟口,仅通过与其相连的 走道排烟。走道采用机械排烟系统时,走道面积应叠加最大一个 周边房间面积,按不小于60m3∕(m2∙h)计算排烟量,且取值不 小于15000m3∕h。排烟补风可仅补至走道。

问题四十四:高大空间的排烟量计算值与查表值差距很大, 如何确定? 8米以上高大空间,给排水专业按规范规定设置了喷淋 系统或水炮系统,是否应该按有喷淋场所对待?

讨论成果:公共建筑、工业建筑的高大空间(不含中庭)的 排烟量可按下列规定计算:

1.空间净高大于6m且小于等于9m时,单个防烟分区的计算 排烟量可按<烟标》表4.6.3直接取值,也可擬烟标》第4.6.6〜4.6.13


61


条计算确定,其中燃料面到烟层底部的高度Z值需按《烟标》第 4.6.11条的计算值增加Im取值。

2.空间净高大于9m时,单个防烟分区的计算排烟量按计算 值(Z值不增加Im)与《烟标》表4.6.3之间的大值取值。

3.当计算排烟量按《烟标》表463取值时,自然排烟窗(口) 面积按表4.6.3中对应的"自然排烟窗(口)风速”计算确定;当 计算排烟量按计算值确定时,自然排烟窗(口)面积应按《烟标》 第4615条计算确定。

4.按《烟标》表4.6.3、表4.6.7查取排烟量及火灾热释放速 率时,应根据排烟场所的具体使用性质确定。空间净高大于8m采 用自动喷水灭火系统的场所,按有喷淋场所对待;采用固定消防 炮或自动跟踪定位射流灭火系统的场所,按无喷淋场所对待。灭 火系统采用的方式应根据给排水专业提供的设计资料确定。

问题四十五:设计中经常有面积小但空间较高的门厅等,火 灾危险性很小,疏散便利,但是计算排烟量非常大,整个空间需 要遍布排烟口才能满足要求,对其他专业的空间效果有很大影响, 对该类建筑是否应和火灾危险性较大的高大空间有所区别?

讨论成果:对于连通空间(楼面开口)最大投影面积不超过 200 rrf的办公、住宅、学校、幼儿园、老年人照料设施、建筑高度 不大于24m的旅馆和宿舍等类似建筑的中庭(含中庭回廊),以 及建筑面积不超过300 ɪrf净高大于6m且与周边场所用防火隔断完 全分隔的门厅等空间,当采用机械排烟系统时,计算排烟量可按 换气次数6/h计算,且排烟风机公称风量不应小于40000m3∕h; 当采用自然排烟系统时,其自然排烟窗(口)开启的有效面积不


62


应小于该空间地面面积的5%o


问题四十六:《烟标》第4.6.4条中“相同净高" "不同净高" 应如何区分?

讨论成果:《烟标》第4.6.4条中“相同净高""不同净高", 是指空间净高是否在同一高度范围。同一排烟系统的多个防烟分 区的空间净高均大于6m或均小于等于6m,属于"相同净高”; 反之,同一排烟系统的多个防烟分区的空间净高部分大于6m,部 分小于等于6m,属于"不同净高"。

属于"不同净高"的多个防烟分区不宜纳入同一机械排烟系 统。

问题四十七:当一个机械排烟系统负担多个防烟分区的排烟 时,负担单个防烟分区的排烟支管、排烟口的排烟量、风速以及 相应补风支管、补风口的补风量、风速如何确定?

讨论成果:当一个机械排烟系统负担多个防烟分区的排烟时, 各防烟分区的排烟支管、排烟口的排烟量和风速按所负担的防烟 分区的计算排烟量确定。

当一个机械补风系统负担多个防烟分区的补风时,各防烟分 区的补风支管、补风口的补风量和风速按所负担的防烟分区的计 算排烟量的50%-80%确定。

当一个机械排烟系统中有属于不同空间的防烟分区时,例如 有按房间划分的防烟分区,如补风需补至相应防烟分区内,应采 取保证补风量分配的措施。采用电动常闭补风口时,补风口应与 对应防烟分区的排烟口(阀)联锁开启。


63


问题四十八:《烟标》公式4.6.14条,公式中侧向排烟口 db 的定义与条文说明中的图示不一致,按什么执行?

讨论成果:《烟标》公式4.6.14中,db为排烟系统吸入口最 低点之下烟气层厚度。设置于墙上的侧向排烟口,db为排烟口下 缘之下的烟气层厚度。

问题四十九:对于不规则顶棚的场所,空间净高H'如何确 定?其他地方的规定多是取排烟口中心高度,这样存在一个问题, 排烟口越高,H,越大,最小清晰高度越大,公式4.6.11Z值越 大,MP就越大,排烟量就越大,设计中为了减小排烟量会尽量把 排烟口设在相对低处,但排烟口应尽量设在高处才有利于排烟。

讨论成果:排烟系统设计的空间净高确定应符合下列规定:

1.计算最小清晰高度时,单层空间,空间净高H'取排烟空 间的建筑净高;多层空间,空间净高H'取最高疏散楼层的净高。

2.具有不规则顶棚的场所,空间净高H'按如下规定确定:

①对于锯齿形顶棚,空间净高H,为顶棚下沿距地面的高度 (如图4.48-1所示);(图中所画多个排烟窗仅示意可设置在不 同位置,不表示排烟窗(口)数量,下同)

②对于人字形顶棚,空间净高H,为顶棚顶面至顶棚底面的中 线距地面的高度(如图4.48-2所示);

③对于斜坡顶棚,空间净高H'为斜坡中线距地面的高度(如 图4.48-3所示);

④对于阶梯式地面的场所,计算最小清晰高度时,空间净高H' 按最高地面标高距其对应区域的顶棚底部高度取值(如图4.48-4 中的H');计算排烟量时,《烟标》第4.6.3条中的空间净高按


64


最低地面标高距其对应区域的顶棚底部高度取值(如图4.48-4中 的H),燃料面按位于最低的地面进行设计计算。阶梯式地面的 场所如为不规则顶棚,按上述①~③的原则确定图中的值。






问题五十:加压送风机、排烟风机、补风机与排烟口、正压 送风口的消防联动关系,尤其是常开加压送风口是否需要设置手 动按钮联动启动加压送风机?

讨论成果:加压送风机、排烟风机、补风机应具备现场手动 启动、火灾自动报警系统联动启动和消防控制室手动启动的功能。

1.现场手动启动的现场是指风机安装位置的现场。


65


2.当加压送风系统采用常闭送风口时,送风口可通过火灾自 动报警系统联动开启及风口自带的手动开启装置手动开启。常闭 送风口开启后,其开启信号又会作为触发信号,反馈回消防联动 控制装置联动启动加压风机。当采用常开加压送风口时,风口无 开启动作,没有信号反馈,常开加压送风口无需单设手动装置与 火灾自动报警系统联动。

3.机械加压送风系统应与火灾自动报警系统联动,并应能在 防火分区内的火灾信号确认后15s内联动开启该防火分区的全部 疏散楼梯间、前室的加压送风机,同时联动开启该防火分区所在 着火层及其相邻上下各一层全部独立前室、合用前室、共用前室、 三合一前室的常闭加压送风口。

4.排烟系统中任一排烟阀或排烟口应具备由火灾自动报警系 统联动开启及风口安装位置现场手动开启功能。此处的排烟口是 指和排烟阀具有类似功能的带有控制阀体的排烟风口,平时呈关 闭状态,并满足漏风量要求,火灾时可手动或电动开启。排烟系 统中任一排烟阀或及排烟口开启后,其开启信号又会作为触发信 号,反馈回消防联动控制装置联动启动相应的排烟风机、补风机。

问题五十一:除《设通规》第11.3.5条规定部位之外,排烟 管道穿越其他重要部位、危险场所等是否需要设置排烟防火阀, 是否和排烟风机等联锁关闭?

讨论成果:防排烟、空调、通风管道在穿越《设通规》第11.3.5 条、《建通规》第6.3.5条规定的位置处均应设置相应排烟防火阀 或防火阀。

排烟管道在穿越《设通规》第11.3.5条规定部位时应设置排


66


烟防火阀,排烟防火阀应具有在280℃时自行关闭和联锁关闭相应 排烟风机、补风机的功能。排烟管道其他部位设置的排烟防火阀 应具有在280久时自行关闭的功能,可不联锁关闭排烟风机、补风 机,但关闭信号应反馈回消防控制显示装置。

问题五十二:风管是否可以穿越楼梯间、避难走道、前室? 讨论成果:楼梯间、避难走道、前室为安全区域,风管穿越 安全区域应按下列规定执行:

1.加压风管跨越安全区域和非安全区域时,穿越隔墙处应设 置70℃自行关闭的防火阀,且宜设置在非安全区域一侧;加压风 管穿越安全区域的内部隔墙(如楼梯间和前室之间的隔墙)处可 不设置防火阀;当加压送风管井位于安全区域内时,管井内加压 送风立管连接各层支管处可不设置防火阀。

2.其他通风、空调风管,不应穿越楼梯间、前室(合用前室)、 避难层(间)及避难走道等防烟部位(安全区)。当受条件限制 必须穿越时,应设置在结构夹层内,结构夹层板的耐火极限与本 层楼板相同。

问题五十三:消防风管是否可以采用复合型风管?

讨论成果:经检测合格,满足《烟标》规定的强度、耐火极 限、严密性、隔热及抗震要求的复合型耐火风管,可用于机械加 压送风系统、排烟系统及补风系统。

问题五十四:设备用房、电梯厅、游泳馆、电动汽车库等场 所的排烟设施如何设置?

67


讨论成果:关于部分特殊场所的排烟设施设置:

1.水泵房、通风空调机房、变配电室、燃油(燃气)锅炉(机 组)机房、制冷机房及建筑面积小于300m2的柴油发电机房等无 人员经常停留的机电用房(有人员值班的且面积大于等于50ιn2的 控制室除外),可不设置排烟设施。

2.设置气体灭火系统、细水雾灭火系统的场所(防护区), 不应设置排烟设施。

3.建筑内的地下或地上无外窗的电梯厅(门厅)(不含作为 前室使用的情况),当其建筑面积大于50m2时应设置排烟设施。

4.面积不大于100m2的医院洁净用房,其排烟口及补风口可 设于与之相通的疏散走道内,走道排烟量的计算面积为走道防烟 分区面积附加与之相通的面积大于50r2的最大洁净室房间面积。

5.游泳馆、冰球场、室内滑雪场的观众休息厅和比赛大厅应 分别设置独立的排烟设施。在计算排烟量或自然排烟口开窗面积 时,水区、冰面、雪地可不计入。没有看台的游泳池大厅、冰球 大厅、滑雪大厅,当与其附属用房之间采用防火门、防火隔墙分 隔时,可不设排烟设施。当与附属用房之间没有防火门、防火隔 墙分隔时,应采取排烟措施,在计算排烟量或自然排烟口开窗面 积时,水区、冰面、雪地的面积可不计入。

6.设有电动汽车充电设施的汽车库,同一防火分区内的防火 单元可共用通风、排烟、补风系统,但每个系统所负担的防火单 元数量不应超过2个,且负担的总建筑面积不应超过2000m2,共 用系统的排烟量可按单个防火单元的排烟量确定,各个防火单元 的风管应独立设置,补风应直接送入每个防火单元内,不应从相 邻防火单元或防火分区间接补风。


68


问题五十五:是否可以通过在内走道内加设甲级防火门的方 式将一个内走道分隔为两个走道,从而满足自然排烟条件?

讨论成果:除在疏散走道内防火分区处设置的甲级防火门可 将相连的疏散走道分成两个独立的疏散走道以外,疏散走道内设 置的其他隔断门、防火门,均不能将该疏散走道认作成两个走道, 该疏散走道的排烟计算长度应按门两侧的长度叠加计算。

问题五十六:柴油发电机房与储油间是否可以共用通风系统, 是否可以采用普通风机。

讨论成果:民用建筑中柴油发电机房及储油间的通风系统:

1.柴油发电机房与其配套储油间应分别设置通风系统;采用气 体或干粉灭火系统的场所,其排风系统应满足灭火后的通风要求;

2.风管穿越储油间防火隔墙处应设置70℃防火阀;

3.柴油发电机房可采用普通风机,储油间应采用防爆风机。


69


第六章城市轨道交通工程


一车站建筑


问题一:车站内站厅层设备管理区至站台层设备管理区的楼 梯,是按疏散楼梯设计或按工作联系楼梯设计?

讨论成果:

1.当站台层设备管理区设计为无人值守的设备用房,不需要 利用站台层设备区至站厅层设备楼梯即可满足站台层设备区消防 疏散要求时,站厅层设备管理区至站台层设备管理区的楼梯可仅 作为工作联系楼梯使用,该楼梯按封闭楼梯设计。

2.当站台层设备管理区设计为有人值守的设备用房,需要利 用站台层设备区至站厅层设备楼梯才能满足站台层设备区消防疏 散要求时,该楼梯应按消防疏散楼梯间要求设计。


问题二:当车站站厅层公共区防火分区面积大于5000m2,采 用防火分隔将公共区划分为多个不大于5000m2的防火分区时,能 否采用防火卷帘作为防火分区分隔,且防火卷帘长度不限?


a    1号出入口                                 2号馱口



70


讨论成果:可以采用防火卷帘作为防火分隔,卷帘长度不限; 但分隔后的区域应为独立防火分区,安全出口数量和疏散距离应 满足相关规范要求。

问题三:多线换乘站共用站厅时,站厅层内商铺总面积如何 控制?是否可以按两线换乘时商铺总面积不超200m2,三线换乘时 商铺总面积不超300m2,以此类推?

讨论成果:换乘站共用站厅按一个“厅"考虑,根据规范要 求站厅层内商铺总建筑面积WloOm2。

问题四:车站站厅层公共区内商铺是否需设置独立疏散门?

讨论成果:按地铁设计防火标准图例设置防火卷帘即可,不 需增设防火门,防火卷帘应设计为两次下降。

问题五:轨道交通站厅层或者出入口通道与商业联通时,轨 道交通和商业各自疏散人数计算是否考虑相互影响?

讨论成果:商业与轨道交通疏散人数按各自规范要求分别计 算,不考虑相互影响。

问题六:高架站或地面站站厅层同层贴邻布置商业等非地铁 功能时,相互间是否需要按《地铁设计防火标准》(GB51298-2018) 4.1.6条,设置长度不小于IOm,宽度不大于8m的连接通道。

讨论成果:按《地铁设计防火标准》第46条执行,设置长 度不小于IOm,宽度不大于8m的连接通道。


71


问题七:地下车站的出入口通道是否计入站厅层的防火分区 面积?

讨论成果:地下车站出入口通道不计入站厅层防火分区面积; 公共区与出入口通道分界面应为主体侧墙与出入口通道接口处, 若分界面位于通道内,则纳入站厅层范围的通道区域,通道层高 应与站厅层的层高保持一致;分界面处需设置挡烟措施。


问题八:地下车站疏散楼梯间是否计入所服务楼层防火分区 面积?若计入,防火分区面积如何计算?



讨论成果:地下车站疏散楼梯间应计入所服务楼层防火分区 面积,楼梯间防火分区面积按楼梯间所服务楼层的水平投影面积 计算。

问题九:

1. "地下车站出入口通道长度超过IOOm时,通道内任一点 至最近安全出口距离不应大于50m",站厅层公共区与出入口通 道的连接口能不能作为通道的安全出口?


72


2.出入口通道内的支通道是否可以作为安全出口?

3.超长换乘通道是否划分防火分区,安全出口应如何设置?

讨论成果:

1.站厅层公共区与出入口通道的连接口不能作为通道的安全 出口。

2.出入口通道内的支通道可替代安全出口,但该支通道应具 备独立直通地面条件,不能与其它出入口通道相互借用。

3.换乘通道不设置防火分区;超过IOO米时应按《地铁设计 防火标准》(GB 51298-2018)5.2.6条增设安全出口,从车站 主体口部到第一个安全口距离不超过100米。

问题十:暗挖车站站厅上夹层设备管理区疏散楼梯间应如何 设计?

讨论成果:按《地铁设计防火标准》(GB 51298-2018)执行, 上夹层设置为无人值守设备用房时,可向站厅层公共区疏散;若 设置为有人值守设备用房时,则应设置直通室外的疏散楼梯。

问题十一:地下站消防专用楼梯梯段最小净宽度l∙2m,楼梯 间疏散门净宽度是否应不小于梯段宽度?

讨论成果:楼梯间疏散门净宽度不应小于梯段宽度。

问题十二:自动扶梯下部如何采用防火分隔措施?

讨论成果:

1.楼扶梯下部不应设置功能性房间。

2.自动扶梯下部与电缆层应采取防火分隔措施。


73


问题十三:地下车站设备管理区消防专用通道能否与设备管 理区安全出口共用?

讨论成果:地下车站设备管理区消防专用通道与设备管理区 安全出口可以共用;考虑到工作人员参与指导疏散,疏散门宜朝 车站方向(救援方向)开启。

问题十四:车站设备管理区疏散走道内向走道开启的房间门 完全开启时,走道的净宽度如何来确定?

讨论成果:按《重庆市轨道交通工程勘察设计文件审查要点》 第5.1.4条(分层平面图)执行,疏散走道内向走道开启的房间门 完全开启时,走道净宽度不小于1.1m

问题十五:独立设置的地下无人值守消防泵房安全出口应如 何设置?

讨论成果:消防泵房建筑面积小于200ιn2可仅设一个直通室 外的安全出口;消防泵房建筑面积大于200m2应设两个安全出口, 其中一个安全口可以为爬梯。

问题十六:无人值守的设备管理区的疏散距离如何确定?

讨论成果:疏散门至最近安全出口的距离,当疏散门位于2 个安全口之间时,不应大于40m,当疏散门位于袋形走道两侧或 尽端时,不应大于22m

问题十七:车站内设置垂直电梯,当电梯提升高度超过H米 时,中间检修平台的安全出口应如何设置?


74


讨论成果:可设置通向检修平台的检修门洞,检修门洞构造 需满足相应的防火要求。



无障碍电梯


楼梯间


问题十八:车站建筑内电缆夹层、车辆段内及其它单体建筑 电缆夹层的疏散如何设计?

讨论成果:

1.车站建筑内的电缆夹层(仅作为管线通廊使用,不做其它 功能使用)可仅设置检修人孔及爬梯。

2.车辆段内及其它单体建筑电缆夹层,当夹层层高不大于2.1 米时,可以通过设置不少于两处检修孔及检修爬梯的方式进行疏 散;当夹层层高大于2.1米时,应至少设置2个安全出口。

问题十九:站台应急门设置在站台计算长度内的设备管理区 和楼梯、扶梯段内时,应如何核算侧站台在应急门开启时的通过 能力?

讨论成果:目前规范尚未明确,设计阶段可避开电梯及楼扶


75


梯逼仄处。


问题二十:车站站台至站厅层楼梯间形式该如何确定?

讨论成果:执行《重庆市轨道交通工程勘察设计文件审查要 点》第54条对于三层站或提升高度大于Iom的楼梯间,应设防 烟前室。防烟前室的面积不小于6r2

问题二十一:当车站站台两端各只有一部上行和一部下行的 扶梯组,考虑了检修后,该扶梯是否还算疏散口?

讨论成果:设计时候应考虑扶梯故障后疏散距离。

二通风空调

问题二十二:车站(含地面、高架车站)站厅公共区防烟分 区最大允许面积、防烟分区长边的最大允许长度是否执行《建筑 防烟排烟系统技术标准》GB 51251-20174.2.4条相关规定?

讨论成果:车站站厅防烟分区划分执行《地铁设计防火标准》 GB 51298-20188.1.5条相关规定,可不考虑防烟分区长边最大 允许长度要求。

问题二十三:高架、地面车站站台层(含轨行区)的自然排 烟是否划分防烟分区?

讨论成果:高架、地面车站站台层不划分防烟分区,执行《地 铁设计防火标准》(GB 51298-2018)8.2.2条相关规定。


76


问题二十四:暗挖车站站厅(拱形)公共区划分防烟分区时, 挡烟垂壁可否设置为拱形?

讨论成果:为保证挡烟效果,挡烟垂壁宜设置为水平,排烟口 底边距挡烟垂壁下沿的垂直距离不应小于0.5m



问题二十五:地下车站的出入口、换乘通道防烟分区标准未 明确。

讨论成果:地下车站的出入口、换乘通道防烟分区参照地下 车站站厅公共区防烟分区相关要求执行。

问题二十六:地下车站出入口人防门至站厅范围是否可纳入 站厅公共区防烟分区?

讨论成果:当人防段区域纳入出入口排烟系统确有困难时, 公共区至人防第一个门范围可划入站厅防烟分区,人防门垛作为 挡烟垂壁,并满足以下图示相关要求,人防门至站厅公共区最近 排烟口水平距离Hl小于30m,人防门至出入口排烟系统最近排烟 口水平距离H2小于30m,且吊顶开孔率不应小于吊顶净面积的


77


25%,孔洞应均匀布置。




能吊顶


L   IXi #«x#


剖面示意图


问题二十七:车站设备区内走道防烟分区是否执行《建筑防 烟排烟系统技术标准》(GB 51251-2017)424条相关规定?

讨论成果:车站设备区内走道防烟分区面积执行《地铁设计 防火标准》(GB 51298-2018)8.1.5条相关规定,防烟分区长边最


78


大允许长度执行《建筑防烟排烟系统技术标准》(GB 51251-2017) 424条相关规定。

问题二十八:当地下、半地下建筑(埋深较深)的封闭楼梯 间不与地上楼梯间共用且地下仅为一层时,封闭楼梯间是否可采 用自然通风?

讨论成果:对于设置在地下的封闭楼梯间,当其服务的地下 建筑层数仅为1层且最底层地坪与室外地坪高差小于IOm时执行 《建筑防烟排烟系统技术标准》(GB 51251-2017)3.1.6条相关 规定,其他情况应设置机械加压送风。

问题二十九:当地下车站埋深大于50m、车站防排烟楼梯间 服务楼层为1〜2层时,仅一个门与走道相通且独立前室,是否可 仅在防排烟楼梯间内设置机械加压送风系统?

讨论成果:防排烟楼梯间疏散高度大于50m时,应按《消防 设施通用规范》(GB 55036-2022)11.2.1条执行,楼梯间和前 室分别设置机械加压送风系统,送风量计算时,按《建筑防烟排 烟系统技术标准》(GB 51251-2017)3.4.53.4.8条执行。

问题三十:《地铁设计防火标准》(GB 51298-2018)8.2.4 条与《建筑防烟排烟系统技术标准》(GB 51251-2017)4.6.3条 关于排烟量计算和最小排烟量要求不一致。

讨论成果:执行《地铁设计防火标准》(GB 51298-2018)8.2.4条相关规定:

1.以各防烟分区建筑面积为基础,按不小于60m3/(rη2∙h)


79


分别计算排烟量;

2.当防烟分区中包含轨道区时,应按列车设计火灾规模计算 排烟量;

3.排烟风机的风量不应低于7200m3/h

问题三十一:一个排烟系统负担多个防烟分区排烟时,系统 排烟量计算是执行《地铁设计防火标准》(GB 51298-2018)8.2.4 条相关规定,还是《建筑防烟排烟系统技术标准XGB 51251-2017) 4.6.4条相关规定?

讨论成果:执行《地铁设计防火标准》GB 51298-20188.2.4 条相关规定:排烟风机的风量应按所负担的防烟分区中最大一个 防烟分区的排烟量、风管(道)的漏风量及其他防烟分区的排烟 口或排烟阀的漏风量之和计算。

问题三十二:排烟系统补风口设置要求《地铁设计防火标准》 (GB 51298-2018)8.2.6条与《建筑防烟排烟系统技术标准》 (GB 51251-2017)4.5.4条不一致,该如何执行?

讨论成果:排烟系统补风口设置要求执行《地铁设计防火标 准》(GB 51298-2018)8.2.6条相关规定:补风口宜设置在与排 烟空间相通的相邻防烟分区内;当补风口与排烟口设置在同一防 烟分区内时,补风口应设置在室内净高1/2以下,水平距离排烟口 不应小于IOmo

问题三十三:风管系统防火阀的设置要求,《地铁设计防火 标准》(GB51298-2018)8.4.9条与《建筑设计防火规范》(GB


80


50016-2014, 2018版)第9.3∙11条要求不一致,如何执行?

讨论成果:《建筑防火通用规范》(GB 55037-2022 )将于2023 61日实施,防火阀设置要求执行《建筑防火通用规范》(GB 55037-2022 )6.3.5条和《地铁设计防火标准》GB 51298-2018 8.4.9条相关要求。

问题三十四:一个排烟系统负担多个防烟分区时,排烟支管 可否设置电动风量调节阀控制各防烟分区开启?电动风量调节阀 是否执行《建筑防排烟系统技术标准》GB 51251-20175.2.2-4 条相关规定?

讨论成果:一个排烟系统负担多个防烟分区排烟时,排烟支 管可设置电动风量调节阀控制防烟分区开启且需满足《建筑防排 烟系统技术标准》GB 51251-20175.2.3条的要求;当排烟支管 采用电动风量调节阀时,执行《建筑防排烟系统技术标准》GB 51251-20175.2.2-4条相关规定。

问题三十五:防烟楼梯间前室、电梯前室机械加压送风系统 服务楼层不大于3层时,加压风口是否可采用常开风口?计算上 述前室机械加压送系统风量时,前室开启门数量是否可按实际楼 层选取?

讨论成果:防烟楼梯间前室、电梯前室机械加压送风系统服 务楼层不大于3层时,加压风口宜采用常闭风口;计算上述前室 机械加压送系统风量时,前室开启门数量可按实际楼层选取。

问题三十六:车站排烟风机与补风机、加压送风机是否能共


81


用机房?

讨论成果:《地铁设计防火标准》(GB 51298-2018)8.4.1 条和《建筑防烟排烟系统技术标准》4.4.5要求不一致,出于安全 考虑,车站排烟风机与补风机、加压送风机分别设置。

问题三十七:车站排风兼排烟风机(平时回排风,火灾时兼 排烟)与排烟风机设置在一个机房内,该机房是否需要设置自动 喷水灭火系统?

讨论成果:车站排风兼排烟风机与排烟风机设置在一个机房 内时,根据《建筑防排烟系统技术标准X GB 51251-2017 )4.4.5-1 条相关规定,机房内应设置自动喷水灭火系统,可采用局部应用 系统。

问题三十八:目前地下车站的排热兼排烟风机均采用变频风 机,而《民用建筑电气设计标准》(GB 51348-2019)13.7.6条 规定"排烟风机不得采用变频调速器控制",两者是否矛盾?

讨论成果:车站的排热兼排烟风机(OTE排热风机)采用变 频风机,电气专业单独设硬连接,火灾时要求直接启动排热风机, 不得采用变频调速器控制排热风机启动。

三动力照明

问题三十九:消防风机供电干线是否采用矿物绝缘类不燃性 电缆。

讨论成果:为满足《地铁设计防火标准》(GB 51298-2018)


82


11.3.4条、《民用建筑电气设计标准XGB51348-2019)13.7.16 规定的火灾时持续供电时间要求,应按《民用建筑电线电缆防火 设计标准》(DBJ50/T-164-2021 )5.3.2进行消防线缆选型,且 线缆敷设按相应规范要求执行。

问题四十:地上车站、区间敷设的线缆选择问题是否应采用 无卤低烟抗紫外线阻燃型;并宜采用辐照交联型?

讨论成果:按《地铁设计防火标准》(GB 51298-2018 )、《民 用建筑电线电缆防火设计标准》(DBJ50/T-164-2021 )及《重庆市 地铁设计规范》(DBJ50-244-2016)要求,地上车站线缆采用无卤 低烟阻燃型;地上区间线缆可采用无卤低烟抗紫外线阻燃型并满足 《民用建筑电线电缆防火设计标准》(DBJ50/T-164-2021 )要求。

问题四十一:车站区域存在深埋车站出入口较长的情况,消 防应急照明集中电源如何设置?

讨论成果:按《地铁设计防火标准》(GB 51298-2018)11.1.5 条执行,条文说明可作为参考;当车站出入口通道较长时,考虑 集中电源回路、供电距离及供电质量等因素,集中电源箱可结合 现场条件设于就近设备房内或挂墙设置并合理增加消防应急配电 导线截面;挂墙安装时集中电源箱满足相关防火要求。

问题四十二:疏散指示标志安装间距大于10米情况,比如车 辆基地大库内,车站站厅(中间无柱)等。

讨论成果:疏散指示标志的设置应符合《消防应急照明和疏 散指示系统技术规范》(GB 51309-2018)3.2.9条及《民用建


83


筑电气设计标准》(GB 51348-2019)13.6∙5∙2条规定;同时在 不侵建筑限界范围的情况下该类场所一般采用大型灯具,且方向 标志灯的标志面与疏散方向垂直时,方向标志灯的设置间距不应 大于30米,并设置地面疏散指示灯。

问题四十三:疏散指示标志灯具吊装、侧墙或柱子侧壁安装 按《消防应急照明和疏散指示系统技术标准》(GB 51309-2018) 3216款选择,但规范和条文说明存在异议。灯具选型是按 室内高度还是按设置高度选择?

讨论成果:轨道交通项目疏散标志灯按《消防应急照明和疏 散指示系统技术标准》(GB 51309-2018)3.2.16款标准执 行,即以室内高度选择小型、中型或者大型疏散指示标志灯具。

问题四十四:气灭设施、防火卷帘等火灾时不需要持续供电 的消防负荷,其配电电缆型号是否必须选用矿物绝缘电缆?

讨论成果:此类用电负荷的电缆分供电干线和配电线路两种 情况进行选择;双电源切换装置前供电干线选型按《民用建筑电 线电缆防火设计标准》(DBJ50/T-164-2021 )5.3.2执行;双电 源切换装置后配电线路采用耐火温度为750℃、持续供电时间 90min耐火线缆且线缆敷设按相应规范要求执行。

问题四十五:对于正常工况下的兼作排风的防排烟风机配电 电缆型号是否选用矿物绝缘电缆?

讨论成果:兼用风机性能应满足消防类风机性能要求,电缆 选型按《民用建筑电线电缆防火设计标准》(DBJ50∕T-164-2021)


84


等规范执行。


问题四十六:变电所、配电室、环控电控室、通信机房、信 号机房、消防水泵房、事故风机房、防排烟机房、车站控制室、 站长室以及火灾时仍需坚持工作的其他房间,设置了备用照明是 否还需要设置疏散照明?

讨论成果:备用照明和应急照明的功能、照度、持续时间、 设置部位、启停方式、灯具选型均有差别,须按《消防应急照明 和疏散指示系统技术规范》(GB 51309-2018)3.8.1条火灾时 对有人值班机房、控制室应设置疏散指示照明。

问题四十七:《消防应急照明和疏散指示系统技术标准》(GB 51309-2018)关于集中电源的选择:在隧道场所、潮湿场所,应选 择防护等级不低于IP65的产品;在电气竖井内,应选择防护等级 不低于IP33的产品。同时规范要求宜设置于值班室、设备机房、 配电间或电气竖井内。轨道交通项目中区间隧道内因土建专业设 置配电小间困难,集中电源箱无法设置于配电间或电井内,集中 电源箱如何设置?

讨论成果:集中电源的防护等级和设置场所均须符合《消防 应急照明和疏散指示系统技术规范》(GB 51309-2018)3.3.8条、 《民用建筑电气设计标准》(GB 51348-2019)13.7.15.1条的规 定。结合轨道交通项目,区间隧道内因土建专业设置配电小间确 有困难情况下,集中电源箱可挂墙安装,挂墙安装时集中电源箱 满足相关防火要求;集中电源箱满足相应牢固性安装要求,设备 厂商需提供满足要求的风洞试验报告和疲劳试验报告。


85


1)电源设置干联络通道或中隔堵



2) 电源设置于隧道壁



问题四十八:区间射流风机配电如何设置?是否可以按区间 射流风机采用环控电控柜集中控制,再由环控电控柜单电源至现 场手操箱进行控制?

讨论成果:应按《地铁设计防火标准》(GB 51298-2018)11.1.3要求进行设置;其规范此条要求当供电距离较长时(一般大 于Ioom),宜采用由变电所双重电源直接供电,并应在最末一级 配电箱处自动切换;不同行车方向的隧道射流风机双电源切换箱 分开设置。

四消防给排水

问题四十九:地下车站室内消火栓是否各层均应设置?

讨论成果:当层高不大于2.2m且建筑未设置疏散通道的各类


86


管道、风道夹层;与车站主体相连的常规条件下无可燃物、无人 员使用的各类土建风道,无需设置室内消火栓系统。

问题五十:车站室外消防用水水源如何选用,管网如何设置?

讨论成果:

1.非地下车站,当车站位于消防水池取水口 150m的保护半 径以内且消防水池储存足够室外设计水量时,可不设置室外消防 给水管网,但取水口数量应与室外消火栓设计流量匹配。

2.地下车站,室外消火栓设计流量不大于20L∕s时,可采用1 路市政供水管网枝状供水,且室外消防水池宜按20L∕s的室外消火 栓设计流量,储存火灾延续时间内的用水量,以提高火灾工况时 的用水可靠性。

问题五十一:地下车站紧急疏散通道室内消火栓如何设置? 讨论成果:紧急疏散通道平直段,按规范要求设置室内消火 栓。疏散通道楼梯间,为避免影响人员疏散,不设置消火栓系统。

问题五十二:地下车站室外消火栓设计水量如何取值?

讨论成果:地下车站室外消火栓设计流量可取值20L∕s,室外 消防管道枝状布置,以降低工程投资、减少市政道路断道开挖。

问题五十三:地下车站室外消火栓如何设置?

讨论成果:地下车站应至少保证位于道路两侧的各一处出入 口 5-40m范围内,设置室外消火栓,且未设置室外消火栓的出入 口,应在本侧室外消火栓15Om保护半径之内。


87


问题五十四:车站高位消防水箱如何设置?

讨论成果:地下车站、地下区间、地面及高架车站室内消火 栓给水系统采用消防泵加压供水时,应设置稳压装置及气压罐, 可不设高位水箱。气压罐的有效储水容积消火栓系统不应小于 150Lo

问题五十五:运营控制中心的控制大厅自动喷水灭火系统及 配套电气房间气体灭火系统如何设置?

讨论成果:根据所在建筑防火分类决定运营控制中心的控制 大厅是否设置自动喷水灭火系统;单独为运营控制中心设置的综 合监控设备室、通信机房、信号机房、计算机数据中心、自动售 检票机房及电源室,应设置气体灭火系统。

问题五十六:区间风井室内外消火栓系统如何设置?

讨论成果:区间风井可仅设置室内消火栓系统,消防给水系 统设计流量不小于10L∕s;风井疏散楼梯间内,不设置室内消火栓 系统;与风井合建的各层设备用房,应设置室内消火栓系统进行 保护,困难条件下,可设置双口双阀消火栓箱。

五消防弱电

问题五十七:换乘车站分设车控室时视频监视系统间是否应 具备互连互通功能?

讨论成果:建议换乘车(非通道换乘)视频监视系统按标准 协议进行互联互通,当发生火灾时,由一个管理主体根据情况进行


88


统一控制,指导疏散。


问题五十八:电梯井内是否应设置火灾探测器?

讨论成果:地下车站及高架车站站内部分应设置火灾探测器。 高架车站站外电梯井内设置火灾探测器容易引起误报,建议高架 车站站外电梯井内不设置火灾探测器。

问题五十九:在地下区间是否需设置消防电话?

讨论成果:在地下区间FAS系统需设置带电话插孔的手动报 警按钮,实现消防电话功能。

问题六十:地下区间手动报警按钮和消火栓启泵按钮的设置 位置能否设置在一侧。

讨论成果:在地下区间手动报警按钮设置在疏散平台侧,消 火栓按钮位置与手动报警按钮交叉设置。


89


第七章工业建筑工程

问题一:单层丙、丁、戊类工业建筑(除冷库外)内有局部 夹层辅房,整栋建筑定为单层还是多层?夹层的最大允许建筑面 积如何限制?

讨论成果:

1.夹层辅房的总建筑面积小于该建筑地面层建筑面积的15% 且小于1200平米(设置自动灭火系统时小于2400平米),夹层可 不计入建筑层数,整栋建筑可定性为单层;但夹层部分的防火设 计应按多层建筑消防定性确定;

2.夹层辅房的总建筑面积大于等于该建筑地面层建筑面积的 15%时,整栋建筑定性为多层。

3.辅房的定义:

a在厂房内:《建筑设计防火规范》3.3.5条所规定的用于管理、 控制、调度、实验、检测等的办公室,以及工人更衣休息室等生 产辅助功能。

b在库房内:《建筑设计防火规范》3.3.9条所规定的直接为仓 库服务的办公管理用房、工作人员临时休息用房、控制室等。

C在物流建筑内:为物流建筑服务的办公室、休息室。

问题二:多层丁、戊类厂房楼梯间在首层是否需要直通室外?

讨论成果:4层及4层以下的丁、戊类厂房可将直通室外的门, 当不经过生产区时,可以设置在离楼梯间不大于15m处。


90


问题三:厂房内第二层设置了满足《建规》3.3.5条规定的办 公用房,有一个独立的疏散楼梯,厂房第三层能否也利用该楼梯 疏散?

讨论成果:根据《建筑设计防火规范》3.3.5条和3.3.9条设置 的独立安全出口,在水平、垂直方向均应独立,不可用于本层或 其他楼层厂房或仓库人员疏散。

问题四:仓库建筑不同防火分区各自有一个独立安全出口, 第二安全出口可否共用楼梯间疏散。

讨论成果:

1•仓库建筑或物流建筑仓储区内的相邻防火分区各自有一个 独立安全出口时,第二安全出口可共用防烟楼梯间或室外楼梯疏 散。

2•共用防烟楼梯间时,该楼梯间及其前室应计入其中一个防火 分区面积,另一防火分区进入该楼梯需增设前室,前室面积均不 应小于6平米,进入前室和楼梯间的门均应为甲级防火门,其余 应符合《建筑设计防火规范》6.4.3条的规定;

3•共用室外楼梯时,通向室外楼梯的门应采用甲级防火门,其 余应符合《建筑设计防火规范》6.4.5条的规定。

问题五:厂房内中间仓库(特别是丙类中间仓库)的最大允 许面积的理解:仅按《建筑设计防火规范》(GB 50016-2014, 2018 年版)第3.3.6条文字面意思执行,还是按此条条文解释中的举例 要求来执行?


讨论成果:


91


1.在厂房内设置的中间仓库,应符合《建筑设计防火规范》 第3.3.6条的规定。

2.中间仓库的占地面积和其中一个防火分区的最大允许建筑 面积应符合《建规》中相应耐火等级和火灾危险性类别仓库的要 求。当设置自动灭火系统时,中间仓库的占地面积和防火分区最 大允许建筑面积可按《建规》第3.3.3条的规定增加。

3.中间仓库的建筑面积与所服务生产区的建筑面积之和不应 大于该厂房一个防火分区的最大允许面积。该中间仓库的最大允 许建筑面积也不应超过该类别仓库一个防火分区的最大允许建筑 面积。

4.非单层厂房各层均有中间仓库时,分别计算各层的中间仓 库面积之和,占地面积以其中最大值为准。

问题六:工业建筑内以有柱无围护结构方式出现时,是否防火 分区面积应计算为半面积。

讨论成果:

1.厂房内与生产和工艺相关的架空空间其防火分区应计算全 面积,建筑面积按现行面积计算规范标准执行。新技术、新工艺 按相关规定提起论证。

2.有顶堆场其防火分区应按照库房的要求计算全面积,建筑 面积按现行面积计算规范标准执行。

问题七:连接多栋厂房的混凝土架空大平台,平台上下均可 通车,无其他使用功能,平台下架空通道三面局部临空,各栋厂房是 否可疏散至该架空平台下方?


92


讨论成果:当满足《物流建筑设计规范》1532条规定时,可 疏散至该架空平台下方。

问题八:多层或高层物流仓库,仓库内的疏散楼梯在首层是 否可以疏散到物流运输平台下方?

讨论成果:当符合《物流建筑设计规范》1532条规定时,可 以疏散到物流运输平台下方。图例展示:



问题九:严重危险级及仓库危险级场所采用喷头时,消防给 水主管大都采用环状管布置,由于厂房面积(尺寸)较大,环状 管之间设置的喷水头个数一般都要超过12个,此时是否需要设置 中间连通管,以满足每侧配水支管控制喷头数不超过6个,环状 间配水支管不超过12个的要求?

讨论成果:要求设置中间连通管。

问题十:货架工艺专业采用的货架尺寸较难满足《自动喷水 灭火系统设计规范》GB 50084-20177.1.6条、7.1.9条中,喷头 溅水盘距顶板距离75-150mm,及货架内置洒水喷头溅水盘距离下


93


部储物顶面不小于15Omm的要求,如果空间狭小,只能满足一个 条件怎么办?

讨论成果:喷头溅水盘与上方层板以及下方储物顶部的距离 均需满足《自动喷水灭火系统设计规范》GB 50084-20177.1.6 条、79条要求。

问题十一:双层仓库,二层平台大板下有较宽的货物周转通 道,此时是否视为货物运输通道?是否需要做喷头及消火栓?是 否可以用喷射型自动射流灭火系统?

讨论成果:应设自动水灭火设施和消火栓系统。

问题十二:净空高度大于8m小于18m的厂房,能否不采用非 仓库型特殊应用喷头,而采用自动跟踪定位射流灭火系统?

讨论成果:最大净空高度为8m12m时,按GB 50084-2017 5.0.2条和第6.1.1条执行,采用自动喷水灭火系统;超过12m 时,釆用自动跟踪定位射流灭火系统。

问题十三:冷库标准规定,设计温度高于0°C且其中一个防火 分区建筑面积大于1500m2的非高架冷库,应设置自动灭火系统。 这个面积1500m2,是指同属一个防火分区内的穿堂和冷冻间(温 度低于0C)面积之和还是只指穿堂面积?冷库的辅房办公,面积 较小是否也需要设置喷淋?

讨论成果:按同一防火分区内的总面积确定,低于0°C的区域 可不设置自动灭火系统。

94


问题十四:高架立体仓库货架一般采用自动小车装卸,货架 工艺平面尺寸布置紧凑、间距较小、高度较高,消火栓充实水柱 保护货架顶端较为困难。净空大于24m的高架立体仓库货架顶端 是否需要消火栓保护到位。

讨论成果:室内消火栓充实水柱应考虑保护立体仓库货架顶 端货物,栓口动压控制在0.7MPa以内。

问题十五:丁、戊类厂房内占所在防火分区面积比例小于20% 的涂装线、调漆间及临时油漆库房等火灾危险性较高的工段,是 否应在火灾危险性较高区域局部设置自动灭火系统?

讨论成果:应按《涂装作业安全规程》(GB 14444-2006 )5.9条要求执行,在连续喷漆作业中的大型喷漆室、流平室、供调 漆室应设自动灭火系统。

问题十六:工业电气室为多层,其中有部分电缆间或含油的 配电装置,按规定是否需设置室内消火栓?是否需在整 建筑的 各层设置室内消火栓?

讨论成果:

1.钢铁冶金企业对设置无油的室内配电装置的电气室按《钢 铁冶金企业设计防火标准》GB 50414-20188.2.1条规定,可不 设置室内消火栓系统。

2.甲乙丙类厂房(仓库)中电气室应设置室内消火栓系统保 护,其余设置有室内消火栓建筑的电气室应按《消防给水及消火 栓系统技术规范》GB 50974-20147.4.3条执行,需在整 建筑 的各层设置室内消火栓系统保护。(注:钢铁冶金企业带电设施附


95


近的消火栓宜配备喷雾水枪)


问题十七:在同一防烟分区内的补风口与排烟口的水平间距 要求不少于5m,对于仅有单面外墙进行自然补风和自然排烟的房 间难以满足时如何处理?

讨论成果:同一防烟分区内,自然补风口与自然排烟口的水 平距离不受限。

问题十八:厂房及仓库设置在外墙的自然排烟窗(口)应沿 建筑物的两条对边均匀设置,是否必须沿防烟分区对边或长边设 置?

讨论成果:在自然排烟口面积、设置高度及水平距离满足《建 筑防烟排烟系统技术标准》的情况下,沿建筑两条对边外墙高位 对称布置即可。

问题十九:地下或半地下,地上无窗房间总面积大于200m2, 且经常有人停留或可燃物较多时,需设置排烟设施,由于工业厂 房控制室类无窗房间单个面积较小且分布分散,该200m2的限制 是否针对连接在一起的相邻房间统计计算?

讨论成果:丁、戊类厂房中连接在一起或通过同一疏散通道 疏散的无窗房间计算其总面积,据此判断是否设置排烟设施;其 余类别厂房内按同一防火分区内的内区无窗房间总面积计算。

问题二十:排除有燃烧或爆炸危险气体、蒸汽和粉尘的排风 系统规范要求风管不能暗设,工业建筑中存在该类风管穿越吊顶


96


(厂房有空调或洁净要求)的情况如何考虑?

讨论成果:在对吊顶内风管设置检修通道便于人员到达检修 检查的情况下,可以设置在吊顶内。

问题二十一:厂房(仓库)自然排烟设计中,层高小于10.7 米是否可按排烟口水平距离不大于30米设计?

讨论成果:采用自然排烟方式的工业建筑,其防烟分区内任 一点与最近的自然排烟窗(口)的水平距离应满足:当其建筑空 间净高小于或等于10∙7m时,水平距离不应大于30m;当其建筑 空间净高大于10∙7m时,水平距离不应大于空间净高的2.8倍。

问题二十二:工业项目可否采用屋顶排烟风机排烟,是否可 不设置风机房?

讨论成果:工业建筑中满足国家相关标准要求的室外耐候性 能(耐腐蚀、抗强风、抗暴雨等性能)的屋顶式消防排烟风机可 直接设置于室外,但其周围至少6m范围内不应布置可燃物,且确 保风机在火灾发生时不受烟火影响,能够正常连续运行。

问题二十三:机械排烟和自然补风窗是否需要联锁?

讨论成果:自然补风系统可不联锁机械排烟风机。

问题二十四:洁净厂房走廊,有较多的防烟分区,可能分属 不同的排烟系统,也可能是一个排烟系统,其补风量按系统补风 量计算还是一个防烟分区补风量计算?

讨论成果:机械补风量按最大防烟分区计算风量计算。


97


问题二十五:厂房内内燃机试验室引入天然气、汽油做试验, 或者氢燃料电池试验室引入氢气做试验,如何确定这些房间的消 防类别。

讨论成果:厂房中利用气体、液体、固体作为燃料或将气体、 液体进行燃烧作其他用的各种房间,应根据房间的分隔情况和建 筑面积大小以及使用可燃气体、液体部位在房间内所占面积统筹 考虑确定其火灾危险性类别。对丁类厂房内有爆炸危险性的房间 应按照《建筑设计防火规范》GB 50016的要求采取措施,在实际 使用了这些物质的房间内,火灾危险性需要按照甲类或乙类考虑。

问题二十六:

1.对于《建筑防火通用规范》(GB 55037-2022)4.1.5条的 “燃油或燃气锅炉房…不应贴邻…疏散楼梯(间)或人员的主要疏 散通道"、《锅炉房设计标准》(GB 50041-2020)4.1.3条的"严 禁设置在…贴邻位置以及主要通道、疏散口的两旁",如何定义主 要疏散通道和疏散口?是否包括只供锅炉房或者相邻其他公用站 房共用的疏散楼梯间?

2.对于《建筑防火通用规范》(GB 55037-2022)4.1.5条的 “…靠外墙部位或地下一层的靠外侧部位”、《锅炉房设计标准》 (GB 50041-2020)4.1.3条的"…或地下室一层靠建筑物外墙部 位”,是否仅认定为有外墙即可?要不要限制外墙面积?

讨论成果:锅炉房贴邻的通道和疏散口,只能用作锅炉房和 其相邻其他公用站房的疏散通道;锅炉房要保证至少有一面墙体 的1/2面积靠建筑物外墙。下图中,为了满足规范只有不到1/2面 积外墙的做法是违反规范的。


98




其他房问


f⅛房间


嘲炉房

工算戸舞


!?他房间


99


第八章综合能源工程

问题一:变电站蓄电池室内照明、通风设备是否选用防爆型 设备?

讨论成果:依据最新颁布的国家标准《火力发电厂与变电站 防火标准》(GB 50229-2019)8.3.4条及条文说明,阀控式密封 铅酸蓄电池室内的通风机及其电动机应为防爆型,并应直接连接; 因照明与通风设备处于同一场所,因此均应按防爆型照明设置。

问题二:集装箱式分布式储能电站与周边建筑的防火间距如 何确定?

讨论成果:集装箱式分布式储能电站与其他建筑的防火距离 参照《电化学储能电站设计规范》(GB 51048-2014)中屋外电池 装置的防火距离执行。

问题三:无人值班变电站是否需设置消防给水系统?

讨论成果:应按照《火力发电厂与变电站设计防火标准》(GB 50229-2019)执行。


100